プライムエリア特集

本町のタワーマンション・高級マンション特集

本町エリアのタワーマンション・高級マンションを厳選紹介。梅田と難波の中間に位置し、職住近接の都市型居住を実現する物件を比較できます。

本町エリアの特徴

本町は御堂筋・中央大通り・堺筋が交差する大阪のビジネス中心地です。船場の繊維問屋街としての歴史を持ちながら、近年はオフィスビルのコンバージョンやタワーマンション開発が進み、職住近接の都市型居住エリアとして変貌を遂げています。

タワーマンション市場の現況

本町エリアは梅田・北浜と比較して坪単価がやや抑えめで、面積あたりのコストパフォーマンスに優れます。ブランズタワー大阪本町、シティタワー大阪本町、プレミストタワー靱本町など新築・築浅タワーが続々と供給され、投資目的の需要も活発です。靱公園に近い西側は居住環境の評価が特に高く、ファミリー層にも人気があります。

住環境

本町駅は御堂筋線・中央線・四つ橋線の3路線が利用可能で、大阪市内全域へのアクセスが極めて良好。靱公園、南御堂、センプルプラザなど生活利便施設も充実しています。梅田・難波の中間に位置し、どちらへも10分以内という立地の強さが最大の魅力です。

竣工まもない注目物件

完成して間もない建物の中から、現在のエリアを理解するうえで比較軸になりやすい物件をまとめています。直近の仕様や価格帯、立地評価をつかみたい方に向くセクションです。

建築中・建築予定の注目物件

これから供給される建築中・計画中の物件です。今後のエリア評価や新規供給の方向性を先回りして確認したい方に向いています。

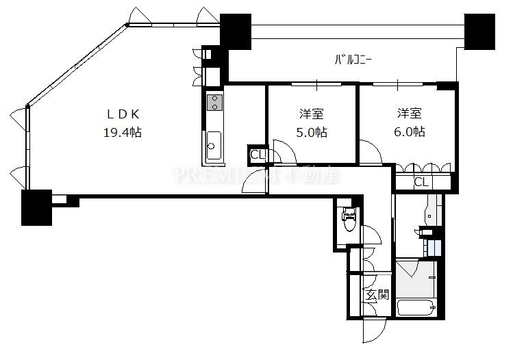
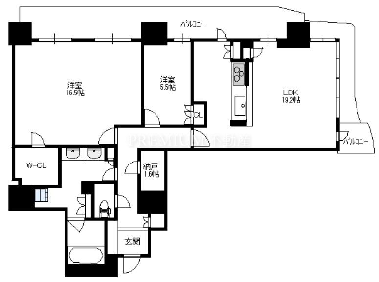
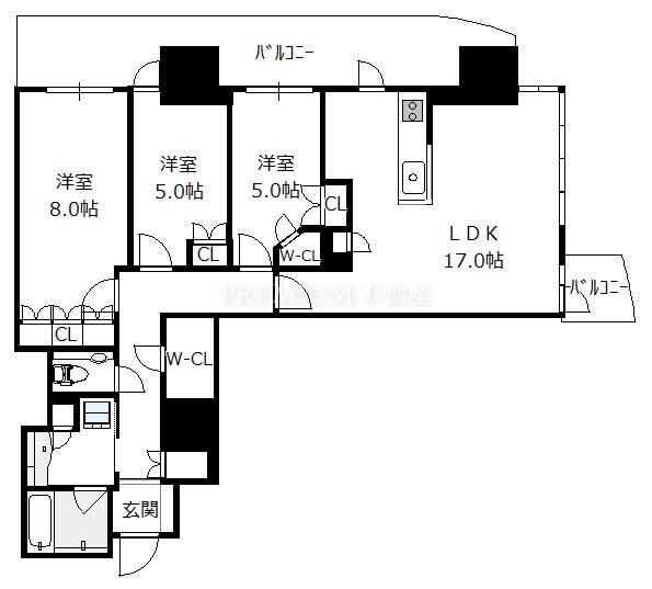
厳選タワーマンション

本町の周辺施設

生活圏として見たときに使いやすい施設をまとめています。公園・ホテル・商業・医療など、そのエリアらしい周辺環境をざっくり把握するための導入として使えるセクションです。

よくある質問

本町エリアのマンションの特徴は?

ビジネス中心地でありながら靱公園の緑に恵まれ、職住近接の利便性と居住環境を両立できます。近年はタワーマンション開発も進み、多様な価格帯の物件が揃っています。

本町エリアのコストパフォーマンスは?

梅田・北浜と比較すると同グレードの物件でも1〜2割ほど価格が抑えられる傾向があり、広さや階数で妥協せずに購入できるケースが多いです。

本町周辺の生活利便施設は?

御堂筋沿いの商業施設やスーパー、靱公園でのスポーツ環境が充実しています。心斎橋・なんばも徒歩圏内で、日常の買い物から休日のレジャーまで困ることはありません。

本町のタワーマンション・高級マンション特集の物件を検索

種別
賃料(単位:万円)
価格(単位:万円)
専有面積(単位:平米)

築年数

お部屋の数

こだわりのバルコニー方位

駅から徒歩

利回り
エリア区分
投資スコア下限




まとめ

本町は大阪ビジネスの中心地ながら靱公園の豊かな緑に隣接し、コストパフォーマンスに優れた住環境を提供します。職住近接を重視する方に最適なエリアです。

AI Premium Concierge