GRAND MAISON 新梅田 TOWER THE CLUB RESIDENCE(大阪市 北区大淀南2街区) 的房源,户型为 1房间
面积: 68.04㎡ / 44层 / 地上51层建。
租金: 44万日元 / 管理费: 35,000日元。
最近车站: 大阪环状线 福岛 步行8分 / 大阪环状线 大阪 步行14分。
建筑设备: 自动门锁 / 社区室 / 礼宾服务 / 电梯 / 客房 / 免震结构 / 派对室 / 空中休息室。
房间设备: 出租分售 / 浴缸加热功能 / 带洗净便座 / 室内洗衣机 / 浴室干燥机 / 地暖。
特点:暂无信息。
建筑概要: 竹中工务店施工,2021年7月竣工,地上51层建筑,总套数871套,超高层抗震结构塔楼。
租金: 44万日元 / 管理费: 35,000日元。
最近车站: 大阪环状线 福岛 步行8分 / 大阪环状线 大阪 步行14分。
建筑设备: 自动门锁 / 社区室 / 礼宾服务 / 电梯 / 客房 / 免震结构 / 派对室 / 空中休息室。
房间设备: 出租分售 / 浴缸加热功能 / 带洗净便座 / 室内洗衣机 / 浴室干燥机 / 地暖。
特点:暂无信息。
建筑概要: 竹中工务店施工,2021年7月竣工,地上51层建筑,总套数871套,超高层抗震结构塔楼。
目录
物件照片・户型图
房源信息
GRAND MAISON 新梅田 TOWER THE CLUB RESIDENCE 的概要
- 所在地
- 大阪市 北区大淀南2街区2-9 [地图]
- 交通
- 大阪环状线 福岛 步行8分
大阪环状线 大阪 步行14分 - 建築年月
- 2021年7月
- 构造
- 钢筋混凝土 / 地上51层建 / 地下1层
- 总户数
- 871户
- 管理方式
- 常驻
- 用途地域
- 商业区
- 建蔽率
- 100%
- 容积率
- 731%
- 土地权利
- 所有权
- 地势
- 平坦
- 国土法届出
- 不需要
- 物件种别
- 公寓
- 备注
- GRAND MAISON 新梅田 TOWER THE CLUB RESIDENCE 是非常适合高端客户安心居住的推荐物件。
该房源概要
- 租金
- 44万日元
- 所在楼层
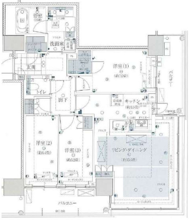
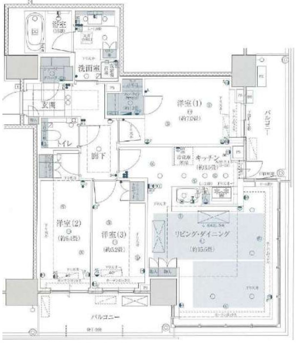
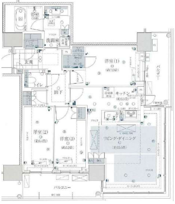
- 44层
- 户型
- 1房间
- 专有面积
- 68.04㎡
- 管理费
- 35,000日元
- 月额合计
- 35,000日元
- 入住时间
- 即
- 現況
- 空房
- 引き渡し
- 即时
- 宠物
- 协商
设备・特点
查看全部设备
- 自动门锁
- 社区室
- 礼宾服务
- 电梯
- 客房
- 免震结构
- 派对室
- 空中休息室
- 快递柜
- 塔楼型
- 出租分售
- 浴缸加热功能
- 带洗净便座
- 室内洗衣机
- 浴室干燥机
- 地暖
停车场・自行车停车场
- 月额费用
- 目前调查中
GRAND MAISON 新梅田 TOWER THE CLUB RESIDENCE
「Grand Maison 新梅田 Tower THE CLUB RESIDENCE(大阪新梅田大厦 THE CLUB RESIDENCE)」,欢迎有意居住(购买或租赁)、考虑出售或租赁以及价格条件、房屋分配、租金管理等的业主(业主先生/女士)咨询,我们是大阪市内专业从事二手高层公寓的高端房地产公司。作为Grand Maison系列之一,这里将建成地上51层地下1层的共871户的超高层公寓。每一户都将安装家用燃料电池“エネファームtypeS”,实现节能和减少CO2排放以保护环境。同时引进商业设施和托儿所,并计划与“交响音乐厅”合作引进“繁华文化设施”。此外,还规划了广阔的绿地广场,预期将成为大阪站以西的新地标。各沿线的“大阪”车站步行可达,JR大阪环状线“福岛”车站步行8分钟即到。户型从1LDK到4LDK,建筑面积从45.84平方米到199.87平方米,种类丰富。 ◆共用设施◆ 1楼:大厅入口大厅·大堂 2楼:客房·高尔夫练习场·社区沙龙·社区休息室·社区露台 35楼:天空露台·天空休息室·派对厅·学习室 ◆停车位◆ 机械式352台 月/30,000日元~39,000日元 ◆摩托车停车位◆ 176台(摩托车停车位18台、迷你摩托车停车位158台) 月/1,800日元~2,000日元 ◆自行车停车位◆ 1,742台(平面式524台、滑动式335台、双层式883台) 月/100日元~500日元 ※请向管理协会确认最新的空位情况并确实停车。
GRAND MAISON 新梅田 TOWER THE CLUB RESIDENCE的优缺点
- 优点
- 35层的户外空间“天空露台”和场地内的公共空地“季节森林(多功能广场)”是其中的魅力之一。
- 缺点
- 在高層大型公寓楼中,可能会很困难确保内部停车场的契约。
GRAND MAISON 新梅田 TOWER THE CLUB RESIDENCE 的常见问题
GRAND MAISON 新梅田 TOWER THE CLUB RESIDENCE 周边设施与环境
绿地
🌳 うめきた公园
610m
酒店
🏨 The Westin Osaka
429m
酒店
🏨 ザ・リッツ・カールトン 大阪
717m
商业设施
🛍️ GRAND GREEN OSAKA
481m
商业设施
🛍️ 新梅田シティ
488m
商业设施
🛍️ ハービスPLAZA
723m
餐饮
🍽️ 福島 もう利
329m
餐饮
🍽️ レストラン「アマデウス」
429m
餐饮
🍽️ 手料理 右近
560m
餐饮
🍽️ 肉和食 月火水木金土日
573m
餐饮
🍽️ 日本料理 花筐(HANAGATAMI)
700m
餐饮
🍽️ 日本料理 楽心
773m
文化设施
🎭 ザ・シンフォニーホール
55m
医疗
🏥 ザ・リッツ・カールトン・スパ
720m
公园
🌲 上福島北公园
146m
公园
🌲 大淀南公园
224m
公园
🌲 浦江公园
257m
公园
🌲 上福島東公园
386m
公园
🌲 大淀中公园
396m
公园
🌲 上福島公园
429m
公园
🌲 中自然の森
456m
公园
🌲 大淀中5公园
464m
公园
🌲 花野・新・里山
560m
公园
🌲 うめきた公园 サウスパーク
597m
公园
🌲 鷺洲北公园
630m
公园
🌲 大淀北公园
672m
公园
🌲 西梅田公园
680m
公园
🌲 福島公园
694m
公园
🌲 うめきた公园 ノースパーク
723m
公园
🌲 鷺洲中公园
763m
超市
🛒 阪急OASIS
52m
超市
🛒 Life
476m
超市
🛒 CoDeli
679m
超市
🛒 KOHYO
739m
药妆店
💊 あけぼの薬局
242m
药妆店
💊 プラス薬局
481m
药妆店
💊 カイセイ吉矢薬局
490m
药妆店
💊 ファミリー薬局
523m
药妆店
💊 カワイ薬局
533m
药妆店
💊 クオール薬局
539m
药妆店
💊 中野薬局
576m
药妆店
💊 薬のヒグチ
586m
药妆店
💊 聖天薬局
608m
药妆店
💊 菊一薬局
705m
便利店
🏪 7-11
133m
便利店
🏪 罗森
148m
便利店
🏪 7-11
255m
便利店
🏪 7-11
273m
便利店
🏪 7-11
300m
便利店
🏪 7-11
314m
医院
🩺 梶本诊所
499m
医院
🩺 大阪中央医院
571m
医院
🩺 しんえつ整骨院
587m
医院
🩺 ヒーリングスペース かくれんぼ
659m
医院
🩺 ライトウインド
659m
医院
🩺 サギス中诊所
782m
托育设施
🧸 愛輝幼儿园
253m
托育设施
🧸 大阪市立大淀保育所
378m
托育设施
🧸 中大淀幼儿园
421m
托育设施
🧸 保育所和光園
502m
托育设施
🧸 みつる幼儿园
509m
托育设施
🧸 福島幼儿园
785m
邮局
📮 大阪大淀中邮局
134m
邮局
📮 大阪聖天前邮局
515m
邮局
📮 新梅田シティ内邮局
526m
邮局
📮 大阪北邮局
621m
邮局
📮 大阪中央 邮局 大淀分館
676m
邮局
📮 大阪福島駅前邮局
756m
银行
🏦 大阪信用金庫(1F)
533m
银行
🏦 大阪商工信用金庫
582m
银行
🏦 大阪厚生信用金庫
661m
GRAND MAISON 新梅田 TOWER THE CLUB RESIDENCE 学区
| 小学学区 | 大淀小学校 |
|---|---|
| 初中学区 | 大淀中学校 |
GRAND MAISON 新梅田 TOWER THE CLUB RESIDENCE的详细信息
查看该建筑的价格走势、交易记录、资产分析和周边环境等详细信息。
GRAND MAISON 新梅田 TOWER THE CLUB RESIDENCE的咨询
欢迎通过您方便的方式联系我们。
GRAND MAISON 新梅田 TOWER THE CLUB RESIDENCE价格与租金行情
| 买卖行情 | 8,380万日元 〜 37,980万日元 平均价格 15,390万日元 / 在售 33件 |
|---|---|
| 租赁行情 | 189,000日元 〜 920,000日元 平均租金 334,456日元 / 在租 197件 |


























































































































































































































