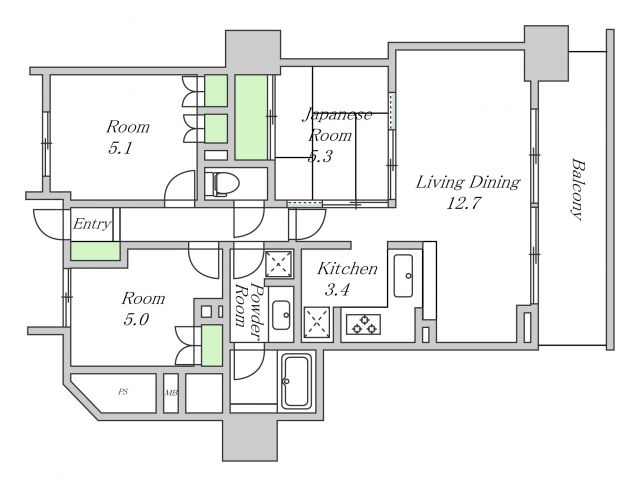
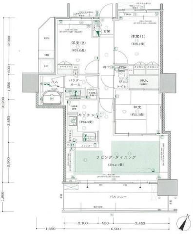
CITY TOWER 大阪福岛(大阪市 福岛区鹭洲3街区) 的房源,户型为 2客厅餐厅加厨房
面积: 70.18㎡ / 37层 / 地上37层建。
租金: 24万日元 / 管理费: 20,000日元。
最近车站: 大阪环状线 福岛 步行10分 / Osaka Metro千日前线 野田阪神 步行8分。
建筑设备: 自动门锁 / 全电 / 社区室 / 礼宾服务 / 电梯 / 派对室 / 空中休息室 / 抗震结构。
房间设备: 出租分售 / 浴缸加热功能 / 室内洗衣机。
特点:暂无信息。
建筑概要: 奥村组施工的于2009年竣工的地上37层、总共349个单位的高层公寓。
租金: 24万日元 / 管理费: 20,000日元。
最近车站: 大阪环状线 福岛 步行10分 / Osaka Metro千日前线 野田阪神 步行8分。
建筑设备: 自动门锁 / 全电 / 社区室 / 礼宾服务 / 电梯 / 派对室 / 空中休息室 / 抗震结构。
房间设备: 出租分售 / 浴缸加热功能 / 室内洗衣机。
特点:暂无信息。
建筑概要: 奥村组施工的于2009年竣工的地上37层、总共349个单位的高层公寓。
目录
物件照片・户型图
房源信息
CITY TOWER 大阪福岛 的概要
- 所在地
- 大阪市 福岛区鹭洲3街区6-10 [地图]
- 交通
- 大阪环状线 福岛 步行10分
Osaka Metro千日前线 野田阪神 步行8分 - 建築年月
- 2009年1月
- 构造
- 钢筋混凝土 / 地上37层建 / 地下1层
- 总户数
- 349户
- 管理方式
- 常驻
- 用途地域
- 准工业区
- 建蔽率
- 60%
- 容积率
- 300%
- 土地权利
- 所有权
- 地势
- 平坦
- 国土法届出
- 不需要
- 物件种别
- 公寓
- 备注
- CITY TOWER 大阪福岛 是非常适合高端客户安心居住的推荐物件。
该房源概要
- 租金
- 24万日元
- 所在楼层
- 37层
- 户型
- 2客厅餐厅加厨房
- 专有面积
- 70.18㎡
- 管理费
- 20,000日元
- 月额合计
- 20,000日元
- 入住时间
- 即
- 損保
- 10,000円
- 現況
- 空房
- 引き渡し
- 即时
- 宠物
- 未指定
设备・特点
- 最上階
查看全部设备
- 自动门锁
- 全电
- 社区室
- 礼宾服务
- 电梯
- 派对室
- 空中休息室
- 抗震结构
- 快递柜
- 电影院
- 塔楼型
- 出租分售
- 浴缸加热功能
- 室内洗衣机
停车场・自行车停车场
- 月额费用
- 目前调查中
CITY TOWER 大阪福岛
「 City Tower 大阪福岛 」希望购买或租赁「 City Tower 大阪福岛 」的客户,请与考虑出售或房租管理等业主(业主)联系,欢迎向专门经营大阪市中古塔楼公寓的高级房地产咨询。
居住在梅田的塔楼公寓。
位于梅田步行范围内,汇聚现代都市精致和便利性的优越地理位置。
注重设计成为城市景观中闪耀的建筑,创造出现代和尖锐的外观。公寓配备减震结构和全电化设施。
开放式大堂配备礼宾台,为日常生活提供支持。注重共用设施,在20层设有天空休息室。
提供欢乐时光的聚会室、音频室、可舒缓身心的按摩室等多样的设施。快递箱和每层都设置了清洁站。
24小时有人管理,通过三重安全系统监视居民的防灾和防犯。
可利用4条线路4个车站。也可以直达市中心。
位于梅田终点区附近,商业区和商务区汇聚,同时成熟为生活社区。
拥有大型商业设施和传统商店街等购物设施。幼儿园、小学和中学教育设施,以及有急救的综合医院均在附近,步行10分钟范围内拥有重要的生活设施。
◆共用设施◆
1层:礼宾服务·大堂
20层:天空休息室
分馆(公共广场)
1层:聚会室
2层:音频(卡拉OK)室·按摩室
◆停车场◆
月租17,000日元至23,000日元
普通车、中等车型、高车顶车
◆摩托车停车场◆
月租1,000日元至2,000日元
◆自行车停车场◆
月租50日元至200日元
※请向管理联合会确认最新空位情况并实际停车位置。
CITY TOWER 大阪福岛的优缺点
- 优点
- 24小时有人管理,安全性得到保障。
- 缺点
- 外廊下的结构是这样的
CITY TOWER 大阪福岛 的常见问题
CITY TOWER 大阪福岛 周边设施与环境
公园
🌲 鷺洲上公园
203m
公园
🌲 鷺洲中公园
282m
公园
🌲 海老江東公园
311m
公园
🌲 鷺洲北公园
363m
公园
🌲 海老江上公园
553m
公园
🌲 福島西公园
559m
公园
🌲 上福島公园
629m
公园
🌲 浦江公园
633m
公园
🌲 中江町公园
642m
公园
🌲 大淀中5公园
649m
公园
🌲 福島公园
664m
公园
🌲 玉川公园
686m
公园
🌲 淀川河川公园 海老江地区
766m
公园
🌲 江成公园
788m
超市
🛒 KOHYO
158m
超市
🛒 イオンスタイル海老江
192m
超市
🛒 関西スーパー
310m
超市
🛒 イオンスタイル
317m
超市
🛒 サンディ
323m
超市
🛒 アプロ
415m
超市
🛒 ミスギヤ
499m
药妆店
💊 聖天薬局
343m
药妆店
💊 杉药局
474m
药妆店
💊 赤木薬局
602m
药妆店
💊 プラス薬局
612m
药妆店
💊 カワイ薬局
641m
药妆店
💊 あけぼの薬局
677m
药妆店
💊 新橋薬局
702m
药妆店
💊 宮薬局
778m
便利店
🏪 全家
115m
便利店
🏪 7-11
237m
便利店
🏪 7-11
345m
便利店
🏪 7-11
513m
便利店
🏪 7-11
524m
便利店
🏪 7-11
575m
医院
🩺 サギス中诊所
179m
医院
🩺 しんえつ整骨院
367m
医院
🩺 友愛会松本医院
414m
医院
🩺 ソラリス整形外科
589m
医院
🩺 フジタ医院
671m
医院
🩺 JCHO大阪医院
774m
托育设施
🧸 大阪市立貫江田幼儿园
141m
托育设施
🧸 保育所和光園
412m
托育设施
🧸 アイグラン保育园海老江
511m
托育设施
🧸 大阪市立海老江保育所
639m
托育设施
🧸 愛輝幼儿园
674m
托育设施
🧸 大阪市立大淀保育所
693m
托育设施
🧸 どんぐりこ
765m
托育设施
🧸 中大淀幼儿园
772m
邮局
📮 大阪福島邮局
433m
邮局
📮 大阪聖天前邮局
462m
邮局
📮 大阪海老江邮局
532m
邮局
📮 大阪大開邮局
645m
邮局
📮 大阪吉野邮局
783m
银行
🏦 大阪厚生信用金庫
233m
银行
🏦 みずほ银行
480m
银行
🏦 三井住友银行
533m
银行
🏦 りそな银行
534m
银行
🏦 三菱UFJ银行
621m
银行
🏦 りそな银行
685m
CITY TOWER 大阪福岛 学区
| 小学学区 | 鷺洲小学校 |
|---|---|
| 初中学区 | 八阪中学校 |
CITY TOWER 大阪福岛的咨询
欢迎通过您方便的方式联系我们。
CITY TOWER 大阪福岛价格与租金行情
| 买卖行情 | 7,480万日元 〜 9,980万日元 平均价格 8,620万日元 / 在售 6件 |
|---|---|
| 租赁行情 | 233,700日元 〜 240,000日元 平均租金 233,933日元 / 在租 27件 |






































