CIELIA TOWER 中之岛(大阪市 福岛区福岛2街区) 的房源,户型为 3客厅餐厅加厨房
面积: 75.24㎡ / 22层 / 地上46层建。
租金: 47万日元 / 管理费: 25,000日元。
最近车站: 京阪电铁中之岛线 中之岛 步行5分 / JR东西线 新福岛 步行4分。
建筑设备: 自动门锁 / 全电 / 电梯 / 客房 / 健身房 / 派对室 / 减震结构 / 空中休息室。
房间设备: 出租分售 / 浴缸加热功能 / 带洗净便座 / 室内洗衣机 / 浴室干燥机。
特点:暂无信息。
建筑概要: 大林集团施工的2026年竣工的46层高层建筑,总户数364户,采用超高层减震结构系统
租金: 47万日元 / 管理费: 25,000日元。
最近车站: 京阪电铁中之岛线 中之岛 步行5分 / JR东西线 新福岛 步行4分。
建筑设备: 自动门锁 / 全电 / 电梯 / 客房 / 健身房 / 派对室 / 减震结构 / 空中休息室。
房间设备: 出租分售 / 浴缸加热功能 / 带洗净便座 / 室内洗衣机 / 浴室干燥机。
特点:暂无信息。
建筑概要: 大林集团施工的2026年竣工的46层高层建筑,总户数364户,采用超高层减震结构系统
目录
物件照片・户型图
房源信息
CIELIA TOWER 中之岛 的概要
- 所在地
- 大阪市 福岛区福岛2街区1-23 [地图]
- 交通
- 京阪电铁中之岛线 中之岛 步行5分
JR东西线 新福岛 步行4分 - 建築年月
- 2026年2月
- 构造
- 钢筋混凝土 / 地上46层建
- 总户数
- 364户
- 管理方式
- 常驻
- 用途地域
- 商业区
- 建蔽率
- 80%
- 容积率
- 600%
- 土地权利
- 定期地上权
- 开发商
- 関電不動産開発株式会社
- 地势
- 平坦
- 国土法届出
- 不需要
- 物件种别
- 公寓
- 备注
该房源概要
- 租金
- 47万日元
- 所在楼层
- 22层
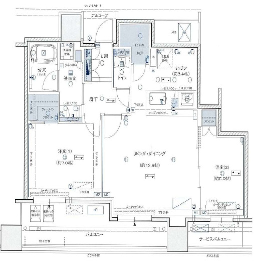
- 户型
- 3客厅餐厅加厨房
- 专有面积
- 75.24㎡
- 管理费
- 25,000日元
- 月额合计
- 25,000日元
- 入住时间
- 即
- 損保
- 22,000円
- 現況
- 空房
- 引き渡し
- 即时
- 宠物
- 未指定
设备・特点
查看全部设备
- 自动门锁
- 全电
- 电梯
- 客房
- 健身房
- 派对室
- 减震结构
- 空中休息室
- 快递柜
- 塔楼型
- 出租分售
- 浴缸加热功能
- 带洗净便座
- 室内洗衣机
- 浴室干燥机
停车场・自行车停车场
- 月额费用
- 目前调查中
CIELIA TOWER 中之岛
如果您想住在“中之岛西苑”,不论是购买还是租赁,或者是考虑买房或根据租金条件进行部署和房租管理等的业主(房主),欢迎随时与我们这家大阪市专门经营中古塔楼公寓的高级房地产公司联系。
坐落在南边俯瞰堂岛川的高达46层的超高层塔楼
作为大阪新水都的象征。提供29种不同户型的多样化住宅方案。
设计理念为“The Flow”。在中之岛,我们将创造出一种与缓缓流淌的河流等曲线美相得益彰的风景,呼应着柔和流动的立面。
【定期地役权(地上权)】建筑物是分户所有,土地是根据专有面积比例的一般定期地役权(地上权),【地役地段】:自交房日起至2098年2月28日(包括拆除工期在内) ※不得因房屋收购请求、合同更新、改建等导致延长期限。※地租押金在合同期满后将会退还。※租金每3年调整一次,定期地役权可转让或转租(转让需要同意,转租需要通知,不需支付同意费) ※在合同期满前必须将租赁地变为空置状态并归还。
◆共用设施◆
1楼、2楼(双层挑高):大堂入口
3楼:健身工作室、共享办公空间、屋顶花园、客房
3楼、4楼(双层挑高):河滨休息室、河景露台
38楼:派对沙龙
38楼、39楼:天空休息室
◆停车场◆
166个车位(机械式164个/平面2个(客人专用))
(月租费用:待定)
◆摩托车停车场◆
大型摩托车停车场8个,小型摩托车停车场73个
(月租费用:待定)
◆自行车停车场◆
729个车位(机械式491个/平面238个)
(月租费用:待定)
※请向管理协会查询最新空位信息并实际停车确认。
该物件属于定期地上权,目前可确认的借地权到期预定为2098年。由于其与所有权公寓的权利形态不同,检讨时需要一并确认剩余年限。
CIELIA TOWER 中之岛的优缺点
- 优点
- 在「 堂岛川滨河」地区,朝南的低楼层也可以享有良好的景观。
- 缺点
- 土地的所有者不同,將成為一般定期借地權(轉租地權) / 属于定期地上权,借地权到期预定为2098年,因此其权利形态与所有权物件不同。
CIELIA TOWER 中之岛 的常见问题
CIELIA TOWER 中之岛 周边设施与环境
绿地
🌳 下福島公园
361m
酒店
🏨 RIHGA Royal Hotel Osaka, Vignette Collection by IHG
259m
酒店
🏨 Four Seasons Hotel Osaka
752m
餐饮
🍽️ point
194m
餐饮
🍽️ 福島 和食 おいしいふるむら
196m
餐饮
🍽️ 日本料理 楽心
345m
餐饮
🍽️ 澤田
375m
餐饮
🍽️ 肉和食 月火水木金土日
490m
餐饮
🍽️ モリタ雲丹五郎 大阪本店
627m
餐饮
🍽️ 手料理 右近
627m
餐饮
🍽️ 日本料理 花筐(HANAGATAMI)
775m
文化设施
🎭 大阪中之島美術館
441m
文化设施
🎭 国立国際美術館
502m
医疗
🏥 ハイメディック大阪中之島
377m
商务
🏢 中之島
公园
🌲 ほたるまちにある広場
248m
公园
🌲 福島西公园
386m
公园
🌲 福島公园
392m
公园
🌲 下福島公园
420m
公园
🌲 芝生広場
427m
公园
🌲 中之島四季の丘
496m
公园
🌲 玉川公园
655m
公园
🌲 上福島公园
659m
公园
🌲 鷺洲中公园
672m
公园
🌲 西梅田公园
694m
公园
🌲 中之島西公园
744m
公园
🌲 上福島東公园
791m
超市
🛒 阪急OASIS
443m
超市
🛒 ミスギヤ
523m
超市
🛒 CoDeli
557m
超市
🛒 Life
568m
超市
🛒 関西スーパー
644m
药妆店
💊 ふくしま薬局
90m
药妆店
💊 はやぶさ薬局
166m
药妆店
💊 フロンティア 薬局
250m
药妆店
💊 みどり薬局
353m
药妆店
💊 セガミ薬局
357m
药妆店
💊 菊一薬局
362m
药妆店
💊 なの花薬局
378m
药妆店
💊 薬のヒグチ
481m
药妆店
💊 中野薬局
488m
药妆店
💊 ファミリー薬局
540m
药妆店
💊 カワイ薬局
548m
药妆店
💊 カイセイ吉矢薬局
575m
药妆店
💊 プラス薬局
612m
药妆店
💊 パル薬局
689m
药妆店
💊 聖天薬局
720m
便利店
🏪 罗森
102m
便利店
🏪 全家
177m
便利店
🏪 全家
211m
便利店
🏪 罗森
241m
便利店
🏪 罗森
260m
便利店
🏪 7-11
279m
医院
🩺 関西電力医院
83m
医院
🩺 中之島いわき医院
284m
医院
🩺 JCHO大阪医院
314m
医院
🩺 ハイメディック大阪中之島
324m
医院
🩺 大阪中之島整形外科
329m
医院
🩺 中之島アイセンターCLINIC
335m
医院
🩺 桜橋渡辺未来医療医院
346m
医院
🩺 活寿会記念诊所
347m
医院
🩺 住友医院
414m
医院
🩺 ヒーリングスペース かくれんぼ
417m
医院
🩺 ライトウインド
418m
医院
🩺 梶本诊所
566m
医院
🩺 すぎた内科诊所
624m
医院
🩺 みかん鍼灸院整骨院
626m
医院
🩺 つばきSalon鍼灸整骨院
651m
医院
🩺 ReCORE リコア 鍼灸接骨
682m
医院
🩺 しんえつ整骨院
713m
医院
🩺 江戸堀サンテ诊所
736m
医院
🩺 サギス中诊所
776m
托育设施
🧸 福島幼儿园
284m
托育设施
🧸 下福島幼儿园
556m
托育设施
🧸 ひばりほいくえん
602m
托育设施
🧸 保育所和光園
775m
托育设施
🧸 ポプラ保育园
786m
邮局
📮 大阪上福島邮局
156m
邮局
📮 大阪福島駅前邮局
326m
邮局
📮 中之島センタービル内邮局
632m
邮局
📮 中之島ダイビル内邮局
649m
邮局
📮 大阪聖天前邮局
689m
邮局
📮 大阪江戸堀邮局
763m
银行
🏦 りそな银行
260m
银行
🏦 大阪信用金庫(1F)
531m
银行
🏦 農林漁業金融公庫
559m
银行
🏦 大阪商工信用金庫
633m
银行
🏦 大阪シティ信用金庫
701m
CIELIA TOWER 中之岛 学区
| 小学学区 | 下福島小学校 |
|---|---|
| 初中学区 | 福島中学校 |
CIELIA TOWER 中之岛的咨询
欢迎通过您方便的方式联系我们。
CIELIA TOWER 中之岛价格与租金行情
| 买卖行情 | 8,950万日元 〜 18,800万日元 平均价格 13,952万日元 / 在售 4件 |
|---|---|
| 租赁行情 | 250,000日元 〜 1,300,000日元 平均租金 496,717日元 / 在租 124件 |

















































































































































