リーガルタワー船場(大阪市 中央区南久宝寺町2丁目)にある1LDKのお部屋です。
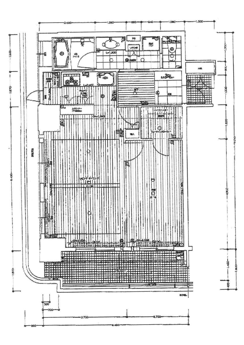
専有面積:62.54㎡、15階、地上20階建。
価格:5,500万円、管理費:3,620円、修繕積立金:6,750円。
最寄駅:中央線 堺筋本町 徒歩4分、御堂筋線 本町 徒歩8分。
建物設備:オートロック、エレベータ、宅配ボックス、タワー型。
部屋設備:オートバス、バリアフリー、シャンプ・ドレッサ、シューズインクローゼット、洗浄便座、システムキッチン、対面式キッチン、ウォークインクローゼット。
特徴:該当情報なし。
建物概要:大阪メトロ中央線「堺筋本町」駅 徒歩4分 / 大阪メトロ御堂筋線「本町」駅 徒歩8分 を活かせる、リーガルタワー船場。
価格:5,500万円、管理費:3,620円、修繕積立金:6,750円。
最寄駅:中央線 堺筋本町 徒歩4分、御堂筋線 本町 徒歩8分。
建物設備:オートロック、エレベータ、宅配ボックス、タワー型。
部屋設備:オートバス、バリアフリー、シャンプ・ドレッサ、シューズインクローゼット、洗浄便座、システムキッチン、対面式キッチン、ウォークインクローゼット。
特徴:該当情報なし。
建物概要:大阪メトロ中央線「堺筋本町」駅 徒歩4分 / 大阪メトロ御堂筋線「本町」駅 徒歩8分 を活かせる、リーガルタワー船場。
目次
物件のお写真・間取り図
お部屋情報
リーガルタワー船場の概要
- 所在地
- 大阪市 中央区南久宝寺町2丁目4-7 [地図表示]
- 交通
- 中央線 堺筋本町 徒歩4分
御堂筋線 本町 徒歩8分 - 築年月
- 2004年7月
- 構造等
- 鉄筋コン / 地上20階建 / 地下1階
- 総戸数
- 85戸
- 管理方式
- 通勤(日勤)
- 用途地域
- 商業地域
- 建ぺい率
- 80%
- 容積率
- 600%
- 土地権利
- 所有権
- 地勢
- 平坦
- 国土法届出
- 不要
- 物件種別
- マンション
このお部屋の概要
- 価格
- 5,500万円
- 所在階
- 15階
- 間取り
- 1LDK
- 専有面積
- 62.54㎡
- 管理費
- 3,620円
- 修繕積立金
- 6,750円
- 月額合計
- 10,370円
- 現況
- –
設備・特徴
全設備を見る
- オートロック
- エレベータ
- 宅配ボックス
- タワー型
- オートバス
- バリアフリー
- シャンプ・ドレッサ
- シューズインクローゼット
- 洗浄便座
- システムキッチン
- 対面式キッチン
- ウォークインクローゼット
- 浴室乾燥機
- 床暖房
駐車場・駐輪場
- 月額料金
- 現在調査中です
リーガルタワー船場
リーガルタワー船場は、大阪府大阪市 中央区南久宝寺町2丁目4-7に建つ地上20階・地下1階、総85戸のレジデンスです。大阪メトロ中央線「堺筋本町」駅 徒歩4分 / 大阪メトロ御堂筋線「本町」駅 徒歩8分という交通利便を備え、都心アクセスと日常利便の両方を取りやすい立地が魅力です。DB上では要確認に加え、大きな共用施設訴求は要確認が確認でき、スケール感と都市居住性の両方を備えた建物として整理できます。
リーガルタワー船場のメリット・デメリット
- メリット
- – 大阪メトロ中央線「堺筋本町」駅 徒歩4分 / 大阪メトロ御堂筋線「本町」駅 徒歩8分 の交通利便 / – 2004年7月竣工 / – 地上20階・地下1階・総85戸のスケール / – 大きな共用施設訴求は要確認
- デメリット
- – 会社情報や詳細共用仕様は要確認 / – 各階ゴミ置場、内廊下、ペット条件など未確認項目が残る / – 駅直結有無や細かな管理情報は追加確認が必要
リーガルタワー船場のよくある質問
リーガルタワー船場 近隣施設・環境
ホテル
🏨 W OSAKA
488m
ホテル
🏨 The St. Regis Osaka
554m
商業施設
🛍️ 大丸 心斎橋店
780m
飲食店
🍽️ ラ ベデュータ
550m
飲食店
🍽️ wad
594m
飲食店
🍽️ すき焼き しゃぶしゃぶ 豚々 心斎橋店
596m
飲食店
🍽️ 桝田
686m
飲食店
🍽️ 太庵
699m
飲食店
🍽️ 太庵
699m
飲食店
🍽️ La Cime
730m
飲食店
🍽️ Fujiya 1935
743m
医療
🏥 ハイメディック大阪
432m
医療
🏥 トキコクリニック心斎橋院
594m
医療
🏥 Wクリニック 心斎橋院
688m
医療
🏥 MAクリニック心斎橋
799m
教育
🎓 相愛中学校・相愛高等学校
709m
ビジネス
🏢 南船場
ビジネス
🏢 本町
公園
🌲 東横堀公園(南側)
609m
公園
🌲 東横堀公園(北側)
763m
スーパー
🛒 KOHYO
146m
スーパー
🛒 ライフ
272m
スーパー
🛒 舞昆
380m
スーパー
🛒 フレスコ
541m
スーパー
🛒 みちのたより
651m
スーパー
🛒 ODA
657m
スーパー
🛒 業務スーパー
693m
ドラッグストア
💊 スギ薬局
212m
ドラッグストア
💊 スギ薬局
216m
ドラッグストア
💊 サンドラッグ
318m
ドラッグストア
💊 オーエスドラッグ
327m
ドラッグストア
💊 オレンジ薬局
331m
ドラッグストア
💊 ダイコクドラッグ
339m
ドラッグストア
💊 Kirindo
346m
ドラッグストア
💊 一龍堂薬局
378m
ドラッグストア
💊 ココカラファイン
382m
ドラッグストア
💊 フロンティア薬局
387m
ドラッグストア
💊 ダイコクドラッグ
402m
ドラッグストア
💊 ドラッグアカカベ
411m
ドラッグストア
💊 サンドラッグ
433m
ドラッグストア
💊 ライフ薬局
435m
ドラッグストア
💊 ウエルシア薬局
444m
ドラッグストア
💊 嵐 心斎橋
477m
ドラッグストア
💊 スギ薬局
494m
ドラッグストア
💊 ダイコクドラッグ
497m
ドラッグストア
💊 キリン堂薬局
509m
ドラッグストア
💊 ワカノウラ薬局
540m
ドラッグストア
💊 スギ薬局
558m
ドラッグストア
💊 コクミン
580m
ドラッグストア
💊 金田屋
592m
ドラッグストア
💊 カワドラッグ
595m
ドラッグストア
💊 ココカラファイン
600m
ドラッグストア
💊 オーエスドラッグ
635m
ドラッグストア
💊 ダイコクドラッグ
660m
ドラッグストア
💊 スギ薬局
687m
ドラッグストア
💊 サンドラッグ
700m
ドラッグストア
💊 コクミン
705m
ドラッグストア
💊 スギ薬局
771m
コンビニ
🏪 セブン-イレブン
107m
コンビニ
🏪 ファミリーマート
139m
コンビニ
🏪 ローソン
184m
コンビニ
🏪 ファミリーマート
203m
コンビニ
🏪 ファミリーマート
225m
コンビニ
🏪 セブン-イレブン
233m
100円ショップ
💯 ダイソー
421m
100円ショップ
💯 セリア
487m
100円ショップ
💯 ダイソー
733m
100円ショップ
💯 セリア
772m
病院
🩺 みつもとレディースクリニック
496m
病院
🩺 コムロ美容外科
648m
病院
🩺 21心斎橋ビル
662m
保育施設
🧸 市立南幼稚園
353m
保育施設
🧸 きゅうほうじ保育園
413m
保育施設
🧸 堺筋本町サンフレンズ保育園
464m
公共施設
🏛️ 中央区役所
469m
郵便局
📮 船場郵便局
195m
郵便局
📮 大阪南船場一郵便局
323m
郵便局
📮 大阪南船場郵便局
534m
郵便局
📮 大阪南郵便局
692m
郵便局
📮 大阪末吉橋郵便局
696m
郵便局
📮 大阪東郵便局
716m
銀行
🏦 Bangkok Bank
217m
銀行
🏦 阿波銀行
234m
銀行
🏦 三菱UFJ銀行
249m
銀行
🏦 トマト銀行
317m
銀行
🏦 徳島大正銀行
320m
銀行
🏦 みずほ銀行
320m
銀行
🏦 池田泉州銀行
409m
銀行
🏦 商工組合中央金庫
420m
銀行
🏦 十六銀行
442m
銀行
🏦 三井住友銀行
447m
銀行
🏦 四国銀行
459m
銀行
🏦 三井住友銀行
482m
銀行
🏦 東京スター銀行
543m
銀行
🏦 みずほ銀行
556m
銀行
🏦 伊予銀行
570m
銀行
🏦 みずほ銀行
595m
銀行
🏦 りそな銀行
602m
銀行
🏦 永和信用金庫
604m
銀行
🏦 関西みらい銀行
616m
銀行
🏦 福岡銀行
714m
銀行
🏦 のぞみ信用金庫
764m
銀行
🏦 三菱UFJ銀行
769m
リーガルタワー船場 学校区
| 小学校区 | 開平小学校 |
|---|---|
| 中学校区 | 東中学校 |
ローン返済額
毎月の返済額の目安 : 155,257円
借入金額5,500万円、金利1%、返済期間35年での計算です。
※元利均等返済方式での計算になります。あくまでもご返済の目安にするものになりますので、詳細は各銀行でご確認下さい。
投資適正分析・スコア
総合スコア52.7上位 24%○ 良好
収益性53.4上位 19%+2.1 vs 棟内
資産性45.5上位 82%-0.1 vs 棟内
流動性49.6上位 70%+0.0 vs 棟内
値上がり期待52.8上位 25%+1.1 vs 棟内
表面利回り3.82%
実質利回り2.83%
月間CF¥-11,714※利回りはプラスですが、ローン返済・経費控除後はマイナスです
地価5年CAGR7.43%
地価水準¥1,094,623/㎡
エリア区分都心
- 収益性スコア
- 想定賃料収入・キャッシュフロー・自己資金利回り等をもとに、この住戸の収益力を全掲載物件の中で相対評価したスコアです。スコアが高いほど、保有期間中のインカムゲインが期待しやすい住戸といえます。
- 資産性スコア
- 周辺公示地価の水準・建物の総戸数(管理体制の安定性)・売出物件の希少性をもとに、資産価値の維持しやすさを評価したスコアです。好立地・大規模・希少性の高い建物ほど高く評価されます。
- 流動性スコア
- 同建物の出品率・掲載日数・お気に入り登録数・エリアの需給バランスなどをもとに、将来の売却や再賃貸のしやすさを評価したスコアです。高いほど出口戦略を描きやすい住戸です。
- 値上がり期待スコア
- 周辺地価の5年間成長率(CAGR)・直近1年の地価変動・AI査定との乖離をもとに、今後の値上がりが期待できるかを評価したスコアです。ここ10年の大阪マンション市場ではキャピタルゲインが主な収益源となっており、利回りだけでは測れない投資価値を可視化します。
- 自己資金利回り(CoC)
- 自己資金(頭金)に対する年間キャッシュフローの割合です。借入によるレバレッジ効果を含めた実質的な投資効率を示します。例えばCoC 5%なら、自己資金に対して年5%のリターンが見込める計算です。
- 地価5年CAGR
- 周辺地域の公示地価の過去5年間の年平均成長率(Compound Annual Growth Rate)です。エリアの資産性や将来の出口価格を見通す上での参考指標になります。
- 表面利回りと月間CFの関係
- 表面利回りは「年間想定賃料÷購入価格」で経費を含まない指標です。一方、月間CFは管理費・修繕積立金・ローン返済・固定資産税・PM費を全て差し引いた手残りです。特に高額物件ではローン返済額が大きくなるため、表面利回りがプラスでも月間CFがマイナスになることがあります。CF算出条件:借入比率80%・金利1.80%・35年返済。自己資金比率や金利条件によりCFは大きく変動します。
リーガルタワー船場のお問い合わせ
内覧予約や条件確認は、お好みの方法でお問い合わせください。
リーガルタワー船場価格・賃料相場
| 売買相場 | 5,480万円 〜 10,500万円 平均価格 6,740万円 / 売り出し 4件 |
|---|---|
| 賃貸相場 | 160,000円 〜 225,000円 平均賃料 178,958円 / 募集中 24件 |






































総合評価:総合スコア52.7(上位24%)。平均を上回る水準にあり、条件が合えば有力な候補になります。 収益性に強みがある一方、資産性・流動性は慎重に見る必要があります。
収益性スコアは53.4(上位19%)で良好です。 想定利回りは表面3.82%・実質2.83%です。 月間CFは-11,714円の軽微なマイナスで、持ち出し額は管理可能な範囲です。 自己資金利回り(CoC)は-1.3%でマイナスとなっており、レバレッジ効果は限定的です。 (CF算出条件:金利1.80%・借入比率80%・35年返済)
資産性スコアは45.5(上位82%)で、立地や規模の面で周辺物件に見劣りする可能性があります。 周辺公示地価は1,094,623円/㎡と高水準で、都心の利便性が資産性を支えています。 AI査定と売出価格はほぼ一致しており、適正な価格水準です。
流動性スコアは49.6(上位70%)で、売却タイミングや保有期間の見極めが重要です。 掲載52日で、標準的な反応期間内です。 同建物の出品率は4.7%と低めで、供給面での競争圧力は小さいです。
値上がり期待スコアは52.8(上位25%)で、値上がり期待は比較的高い水準です。 周辺地価は5年CAGRで+7.4%と堅調に推移しており、エリアの資産性を支えています。 同エリア・同築年帯の取引単価は直近+19.5%上昇しており、実需も堅調です。
留意事項:修繕積立金は目安に対して24%程度の乖離があります。
同一建物内4住戸の平均スコアは51.2で、この住戸は+1.5ポイント上回っています。
※ 本分析は当社独自のスコアリングモデルに基づく参考値であり、投資の成果を保証するものではありません。実際の投資判断は、個別の調査と専門家への相談を踏まえて行ってください。