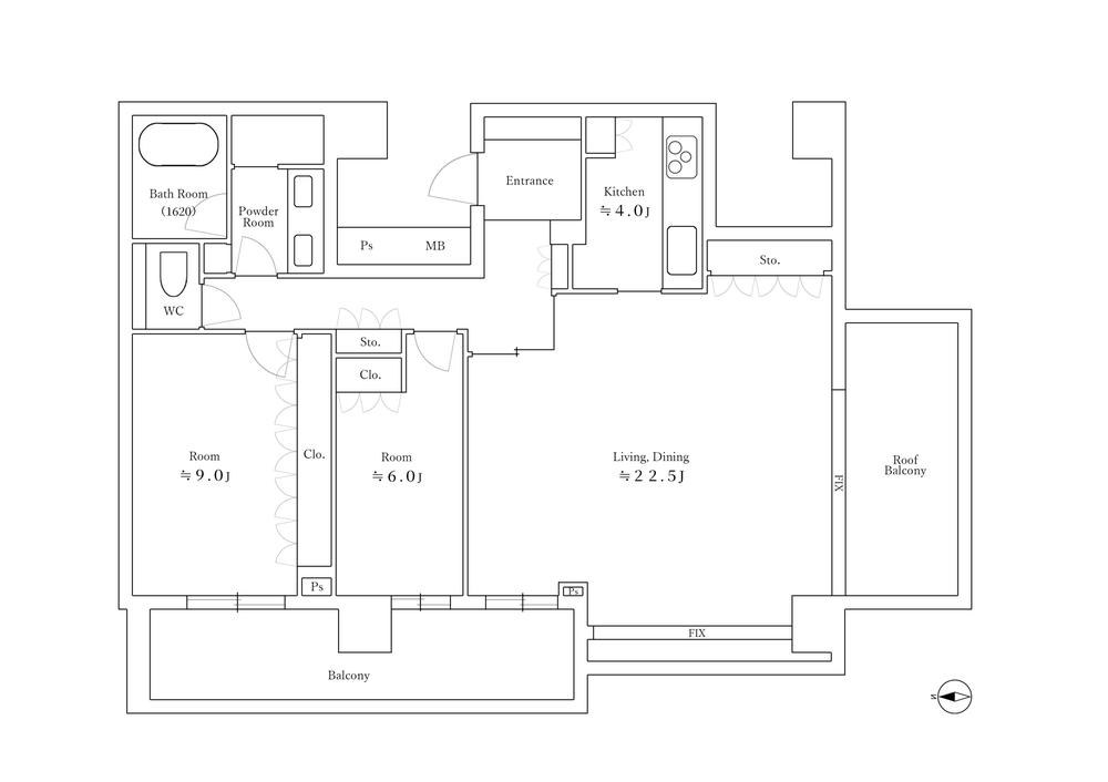
パークタワー梅田(大阪市 北区扇町2丁目)にある3LDKのお部屋です。
専有面積:98.29㎡、31階、地上31階建。
価格:23,800万円、管理費:1,300円、修繕積立金:3,590円。
最寄駅:谷町線 中崎町 徒歩3分、堺筋線 扇町 徒歩7分。
建物設備:オートロック、コンシェルジュ、エレベータ、ゲストルーム、免震構造、スカイラウンジ、宅配ボックス、タワー型。
部屋設備:バルコニー数、眺望良好、角部屋。
特徴:該当情報なし。
建物概要:大阪メトロ谷町線「中崎町」駅 徒歩3分 / 大阪メトロ堺筋線「扇町」駅 徒歩7分 を活かせる、パークタワー梅田。
価格:23,800万円、管理費:1,300円、修繕積立金:3,590円。
最寄駅:谷町線 中崎町 徒歩3分、堺筋線 扇町 徒歩7分。
建物設備:オートロック、コンシェルジュ、エレベータ、ゲストルーム、免震構造、スカイラウンジ、宅配ボックス、タワー型。
部屋設備:バルコニー数、眺望良好、角部屋。
特徴:該当情報なし。
建物概要:大阪メトロ谷町線「中崎町」駅 徒歩3分 / 大阪メトロ堺筋線「扇町」駅 徒歩7分 を活かせる、パークタワー梅田。
目次
物件のお写真・間取り図
お部屋情報
パークタワー梅田の概要
- 所在地
- 大阪市 北区扇町2丁目6-17 [地図表示]
- 交通
- 谷町線 中崎町 徒歩3分
堺筋線 扇町 徒歩7分 - 築年月
- 2013年10月
- 構造等
- 鉄筋コン / 地上31階建 / 地下1階
- 総戸数
- 230戸
- 管理方式
- 通勤(日勤)
- 用途地域
- 商業地域
- 建ぺい率
- 80%
- 容積率
- 400%
- 土地権利
- 所有権
- 地勢
- 平坦
- 国土法届出
- 不要
- 物件種別
- マンション
このお部屋の概要
- 価格
- 23,800万円
- 所在階
- 31階
- 間取り
- 3LDK
- 専有面積
- 98.29㎡
- 管理費
- 1,300円
- 修繕積立金
- 3,590円
- 月額合計
- 4,890円
- 現況
- 空室
設備・特徴
- コンシェルジュ
- ゲストルーム
- 免震構造
- スカイラウンジ
- 眺望良好
- 角部屋
- 最上階
全設備を見る
- オートロック
- エレベータ
- 宅配ボックス
- タワー型
- バルコニー数
駐車場・駐輪場
- 月額料金
- 現在調査中です
パークタワー梅田
パークタワー梅田は、大阪府大阪市 北区扇町2丁目6-17に建つ地上31階・地下1階、総230戸のレジデンスです。大阪メトロ谷町線「中崎町」駅 徒歩3分 / 大阪メトロ堺筋線「扇町」駅 徒歩7分という交通利便を備え、都心アクセスと日常利便の両方を取りやすい立地が魅力です。DB上では免震に加え、コンシェルジュ、ゲストルーム、スカイラウンジが確認でき、スケール感と都市居住性の両方を備えた建物として整理できます。
パークタワー梅田のメリット・デメリット
- メリット
- – 大阪メトロ谷町線「中崎町」駅 徒歩3分 / 大阪メトロ堺筋線「扇町」駅 徒歩7分 の交通利便 / – 2013年10月竣工 / – 地上31階・地下1階・総230戸のスケール / – コンシェルジュ、ゲストルーム、スカイラウンジ
- デメリット
- – 会社情報や詳細共用仕様は要確認 / – 各階ゴミ置場、内廊下、ペット条件など未確認項目が残る / – 駅直結有無や細かな管理情報は追加確認が必要
パークタワー梅田のよくある質問
パークタワー梅田 近隣施設・環境
緑地
🌳 扇町公園
313m
飲食店
🍽️ 和食美味in家しげ
202m
飲食店
🍽️ お料理 しん乃
533m
飲食店
🍽️ 寿し芳
736m
医療
🏥 医誠会国際総合病院
486m
医療
🏥 ルシアクリニック大阪梅田院
739m
公園
🌲 済美公園
318m
公園
🌲 扇町公園
318m
公園
🌲 黒崎町公園
343m
公園
🌲 野崎公園
447m
公園
🌲 天満駅前広場
505m
公園
🌲 浮田公園
515m
公園
🌲 本庄南公園
734m
公園
🌲 西天満公園
767m
公園
🌲 堀川児童遊園地
772m
スーパー
🛒 ライフ
98m
スーパー
🛒 CoDeli
365m
スーパー
🛒 ライフ
441m
スーパー
🛒 スーパー玉出
482m
スーパー
🛒 スッポン堂
522m
スーパー
🛒 イオンフードスタイル中崎町店
557m
スーパー
🛒 ピープルズ
590m
スーパー
🛒 YAMASHO Natural Eats & Liquor
624m
スーパー
🛒 業務用食品館
667m
スーパー
🛒 食鮮宝庫 ほんみね
668m
スーパー
🛒 コデリ
758m
ドラッグストア
💊 祥漢堂 梅田北薬局
135m
ドラッグストア
💊 阪神調剤薬局
149m
ドラッグストア
💊 カイセイ薬局
154m
ドラッグストア
💊 スギ薬局
179m
ドラッグストア
💊 のぞみ 薬局
304m
ドラッグストア
💊 ダイコクドラッグ
343m
ドラッグストア
💊 米山泰山堂薬局
379m
ドラッグストア
💊 扇薬局
395m
ドラッグストア
💊 スギ薬局
406m
ドラッグストア
💊 ダイコクドラッグ
425m
ドラッグストア
💊 ヒグチ薬局
452m
ドラッグストア
💊 オーエスドラッグ
488m
ドラッグストア
💊 サンドラッグ
489m
ドラッグストア
💊 サンドラッグ
495m
ドラッグストア
💊 東梅田薬局
496m
ドラッグストア
💊 柿の木薬局
501m
ドラッグストア
💊 エスエス薬局
506m
ドラッグストア
💊 ダイコクドラッグ
523m
ドラッグストア
💊 アイン薬局
593m
ドラッグストア
💊 ユアーズ薬局
595m
ドラッグストア
💊 スギドラッグ
611m
ドラッグストア
💊 ミック
627m
ドラッグストア
💊 茶屋町薬局
637m
ドラッグストア
💊 ヘルシー薬局
638m
ドラッグストア
💊 ココカラファイン
639m
ドラッグストア
💊 小西辰薬局
645m
ドラッグストア
💊 すみれ薬局
645m
ドラッグストア
💊 北天神薬局
646m
ドラッグストア
💊 北天神薬局 天六店
648m
ドラッグストア
💊 カマダ薬局
673m
ドラッグストア
💊 ダイコクドラッグ
673m
ドラッグストア
💊 ときわ薬局
685m
ドラッグストア
💊 やまき薬局
691m
ドラッグストア
💊 オレンジ薬局
719m
ドラッグストア
💊 天六薬局
746m
ドラッグストア
💊 マツヤ薬店
752m
ドラッグストア
💊 スギ薬局
763m
ドラッグストア
💊 オレンジ薬局
769m
ドラッグストア
💊 ミキヤ薬局
786m
ドラッグストア
💊 ドラックプラス
791m
ドラッグストア
💊 スギ薬局
795m
ドラッグストア
💊 マツモトキヨシ
796m
コンビニ
🏪 セブン-イレブン
150m
コンビニ
🏪 ファミリーマート
152m
コンビニ
🏪 ローソン
158m
コンビニ
🏪 セブン-イレブン
239m
コンビニ
🏪 セブン-イレブン
258m
コンビニ
🏪 ファミリーマート
287m
100円ショップ
💯 セリア
423m
100円ショップ
💯 ダイソー
482m
100円ショップ
💯 キャンドゥ
518m
100円ショップ
💯 ダイソー
519m
100円ショップ
💯 ダイソー
583m
100円ショップ
💯 キャンドゥ
748m
病院
🩺 北野病院
81m
病院
🩺 北野病院西館
90m
病院
🩺 中野耳鼻科
376m
病院
🩺 高石内科循環器クリニック
386m
病院
🩺 医誠会国際総合病院 i-Mall
461m
病院
🩺 原田鍼灸整骨院
467m
病院
🩺 行岡病院
583m
病院
🩺 天五診療所
644m
病院
🩺 川島産婦人科
652m
病院
🩺 ジン クリニック
661m
病院
🩺 京医院
668m
病院
🩺 富野医院
668m
病院
🩺 大原クリニック
686m
病院
🩺 仲鍼灸院
713m
病院
🩺 田上医院
736m
病院
🩺 太田診療所
739m
病院
🩺 イークリニック
744m
病院
🩺 石井クリニック
745m
保育施設
🧸 扇町同胞幼稚園
185m
保育施設
🧸 中崎町かいせい保育園
286m
保育施設
🧸 きたの旭ヶ丘学園
456m
保育施設
🧸 中崎はな保育園
496m
保育施設
🧸 梅田ひまわり保育園
564m
保育施設
🧸 音色つばさ保育園
677m
保育施設
🧸 大阪主婦之会保育園
796m
公共施設
🏛️ 北区役所
374m
郵便局
📮 大阪太融寺前郵便局
314m
郵便局
📮 大阪中崎郵便局
420m
郵便局
📮 大阪野崎郵便局
436m
郵便局
📮 大阪鶴野町郵便局
462m
郵便局
📮 大阪浪花町郵便局
518m
郵便局
📮 大阪天神橋三郵便局
683m
郵便局
📮 大阪阪急内郵便局
715m
銀行
🏦 南都銀行
405m
銀行
🏦 大阪シティ信用金庫
536m
銀行
🏦 大阪シティー 信用金庫
554m
銀行
🏦 大阪協栄信用組合
564m
銀行
🏦 北おおさか信用金庫
636m
銀行
🏦 大和証券
640m
銀行
🏦 みずほ証券
642m
銀行
🏦 三菱UFJ銀行
657m
銀行
🏦 三井住友信託銀行
665m
銀行
🏦 紀陽銀行
676m
銀行
🏦 三井住友銀行
683m
銀行
🏦 新生銀行
683m
銀行
🏦 みなと銀行
685m
銀行
🏦 三菱UFJ銀行
691m
銀行
🏦 紀陽銀行
703m
銀行
🏦 泉州池田銀行
709m
銀行
🏦 近畿産業信用組合
723m
銀行
🏦 大阪信用金庫
747m
銀行
🏦 お初天神 EASTBLDG
748m
銀行
🏦 SMBC日興証券
754m
銀行
🏦 三井住友銀行
774m
銀行
🏦 名古屋銀行
786m
パークタワー梅田 学校区
| 小学校区 | 天満小学校 |
|---|---|
| 中学校区 | 天満中学校 |
ローン返済額
毎月の返済額の目安 : 671,839円
借入金額23,800万円、金利1%、返済期間35年での計算です。
※元利均等返済方式での計算になります。あくまでもご返済の目安にするものになりますので、詳細は各銀行でご確認下さい。
投資適正分析・スコア
総合スコア45.4上位 88%▽ 要検討
収益性43.1上位 93%-1.4 vs 棟内
資産性47.6上位 76%+0.7 vs 棟内
流動性53.5上位 58%+0.0 vs 棟内
値上がり期待47.7上位 72%-0.3 vs 棟内
表面利回り2.30%
実質利回り1.66%
月間CF¥-281,983※利回りはプラスですが、ローン返済・経費控除後はマイナスです
地価5年CAGR6.86%
地価水準¥891,750/㎡
エリア区分準都心
- 収益性スコア
- 想定賃料収入・キャッシュフロー・自己資金利回り等をもとに、この住戸の収益力を全掲載物件の中で相対評価したスコアです。スコアが高いほど、保有期間中のインカムゲインが期待しやすい住戸といえます。
- 資産性スコア
- 周辺公示地価の水準・建物の総戸数(管理体制の安定性)・売出物件の希少性をもとに、資産価値の維持しやすさを評価したスコアです。好立地・大規模・希少性の高い建物ほど高く評価されます。
- 流動性スコア
- 同建物の出品率・掲載日数・お気に入り登録数・エリアの需給バランスなどをもとに、将来の売却や再賃貸のしやすさを評価したスコアです。高いほど出口戦略を描きやすい住戸です。
- 値上がり期待スコア
- 周辺地価の5年間成長率(CAGR)・直近1年の地価変動・AI査定との乖離をもとに、今後の値上がりが期待できるかを評価したスコアです。ここ10年の大阪マンション市場ではキャピタルゲインが主な収益源となっており、利回りだけでは測れない投資価値を可視化します。
- 自己資金利回り(CoC)
- 自己資金(頭金)に対する年間キャッシュフローの割合です。借入によるレバレッジ効果を含めた実質的な投資効率を示します。例えばCoC 5%なら、自己資金に対して年5%のリターンが見込める計算です。
- 地価5年CAGR
- 周辺地域の公示地価の過去5年間の年平均成長率(Compound Annual Growth Rate)です。エリアの資産性や将来の出口価格を見通す上での参考指標になります。
- 表面利回りと月間CFの関係
- 表面利回りは「年間想定賃料÷購入価格」で経費を含まない指標です。一方、月間CFは管理費・修繕積立金・ローン返済・固定資産税・PM費を全て差し引いた手残りです。特に高額物件ではローン返済額が大きくなるため、表面利回りがプラスでも月間CFがマイナスになることがあります。CF算出条件:借入比率80%・金利1.80%・35年返済。自己資金比率や金利条件によりCFは大きく変動します。
パークタワー梅田のお問い合わせ
内覧予約や条件確認は、お好みの方法でお問い合わせください。
パークタワー梅田価格・賃料相場
| 売買相場 | 9,980万円 〜 23,800万円 平均価格 16,080万円 / 売り出し 6件 |
|---|---|
| 賃貸相場 | 現在募集中の賃貸データはありません。 |
分譲・中古・売り物件一覧
空室・賃貸物件一覧
現在募集中の賃貸物件はありません。


























総合評価:総合スコア45.4(上位88%)。投資判断の前に収益性と出口戦略を丁寧に確認されることをおすすめします。
収益性スコアは43.1(上位93%)で、収益面での優位性は限定的です。 想定利回りは表面2.30%・実質1.66%です。 利回りは控えめで、キャピタルゲイン寄りの投資判断になります。 月間CFは-281,983円のマイナス想定で、保有期間中の資金計画に注意が必要です。 自己資金利回り(CoC)は-7.1%でマイナスとなっており、レバレッジ効果は限定的です。 (CF算出条件:金利1.80%・借入比率80%・35年返済)
資産性スコアは47.6(上位76%)で、立地や規模の面で周辺物件に見劣りする可能性があります。 周辺公示地価は891,750円/㎡と高水準で、都心の利便性が資産性を支えています。 AI査定と比較して売出価格が14.4%やや割高な水準です。 高層階(31/31階)に位置しており、眺望や希少性の面で資産価値にプラスです。
流動性スコアは53.5(上位58%)で、売却タイミングや保有期間の見極めが重要です。 掲載52日で、標準的な反応期間内です。 同建物の出品率は2.6%と低めで、供給面での競争圧力は小さいです。
値上がり期待スコアは47.7(上位72%)で、値上がりへの期待は限定的です。 周辺地価は5年CAGRで+6.9%と堅調に推移しており、エリアの資産性を支えています。 同エリア・同築年帯の取引単価は直近+31.8%上昇しており、実需も堅調です。
留意事項:修繕積立金の充足率に71%の不足が見られます。将来の追加徴収や一時金リスクに注意してください。 価格帯が2億円以上のため、購入層が限定されます。出口の流動性は通常の価格帯より制約を受ける可能性があります。
同一建物内6住戸の平均スコアは45.9で、この住戸は-0.5ポイント下回っていますが、大きな差ではありません。
※ 本分析は当社独自のスコアリングモデルに基づく参考値であり、投資の成果を保証するものではありません。実際の投資判断は、個別の調査と専門家への相談を踏まえて行ってください。