CIELIA TOWER OSAKA TEMMABASHI (Osaka City, Kita WardTenma1-chome) – 2LDK
Price: 12,800M JPY / Management Fee: 1,100 JPY / Repair Reserve: 5,600 JPY.
Nearest: Osaka Metro Tanimachi Line Temmabashi Walk 4 min / JR Tozai Line Osaka Tenmangu Walk 11 min.
Building Features: Auto lock / Concierge / Elevator / Vibration control structure / Sky lounge / Delivery box / Tower type.
Room Features: Number of balconies / Garbage disposer / Double glazing / System kitchen / Walk-in closet / Bathroom dryer.
Highlights: N/A.
Building Summary: A 30-story tower condominium with a total of 172 units, scheduled for completion in July 2022.
Contents
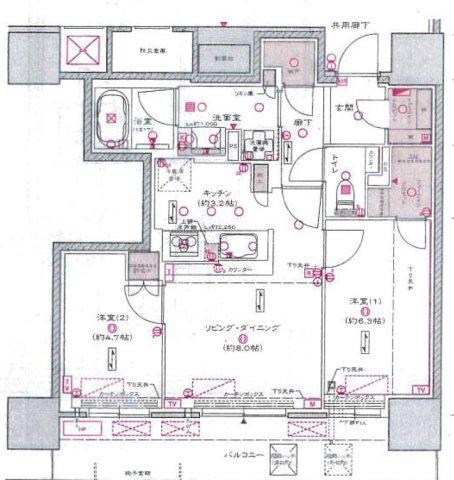
Photos & Floor Plan
Room
CIELIA TOWER OSAKA TEMMABASHI Overview
- Address
- Osaka City, Kita WardTenma1-chome5-7 [Map]
- Access
- Osaka Metro Tanimachi Line Temmabashi Walk 4 min
JR Tozai Line Osaka Tenmangu Walk 11 min - Built
- 20227
- Structure
- Reinforced concrete / 30F / B1F
- Total Units
- 172
- Management
- Commuting (daytime)
- Zoning
- Commercial zone
- Building Coverage Ratio
- 53%
- Floor Area Ratio
- 898%
- Land Rights
- Ownership
- Constructor
- 株式会社長谷工コーポレーション
- Developer
- 関電不動産開発株式会社
- Management Company
- 関電コミュニティ株式会社
- Topography
- Flat
- Land Act Notification
- Not required
- Property Type
- Condominium
Room Summary
- Price
- 12,800M JPY
- Floor
- 29F
- Layout
- 2LDK
- Area
- 55.09㎡
- Management Fee
- 1,100 JPY
- Repair Reserve
- 5,600 JPY
- Monthly Total
- 6,700 JPY
- 現況
- Vacant
Features
View all features
- Auto lock
- Concierge
- Elevator
- Vibration control structure
- Sky lounge
- Delivery box
- Tower type
- Number of balconies
- Garbage disposer
- Double glazing
- System kitchen
- Walk-in closet
- Bathroom dryer
Parking & Bicycle Parking
- Monthly Fee
- Currently under investigation
CIELIA TOWER OSAKA TEMMABASHI
For customers (buying or renting) who want to live in “Ciela Tower Osaka Temmabashi,” or owners (landlords) considering selling due to moving or rental conditions, room allocation, and rent management, feel free to consult with a premium real estate specializing in second-hand tower mansions in Osaka city. ◆Common Facilities◆ ◆Parking◆ ◆Motorcycle Parking◆ ◆Bicycle Parking◆ *Please consult the management association for the latest availability for parking and verify the actual parking space.
To the tower exuding more moisture than anywhere else
Sparkle of the Okawa River flowing gently, cherishing the heart with cherry blossoms and greenery, various traditional events such as Tenjin Festival
Once you cross Tenjinbashi, your heart quickly shifts to excitement, experiencing the glamour of the central Osaka city, feeling the excitement towards the future in your vicinity. By polishing the value of living and essence of luxury that can only be found here, “Ciela Tower Osaka Temmabashi,” aiming for an ideal urban residence, is born.
1st floor: Lounge
Rooftop: Sky Terrace
Mechanical: 70 spaces
Monthly Fee: 28,000-35,000 yen
4 motorcycles: Monthly Fee: 3,000 yen
31 mini motorcycles: Monthly Fee: 2,000 yen
344 spaces: Monthly Fee: 100-500 yen
CIELIA TOWER OSAKA TEMMABASHI Pros & Cons
- Pros
- The top floor consists of only four exclusive residences with a floor area of over 100 square meters (109.71 sqm, 112.64 sqm, 124.72 sqm, 134.44 sqm), making it a premium floor.
- Cons
- How about noise from the western residential units along Tanimachi-suji Avenue?
CIELIA TOWER OSAKA TEMMABASHI FAQ
CIELIA TOWER OSAKA TEMMABASHI Nearby Facilities & Area
CIELIA TOWER OSAKA TEMMABASHI School Districts
| Elementary School | 滝川小学校 |
|---|---|
| Junior High School | 北稜中学校 |
Loan Estimate
Estimated monthly payment: 361,325 JPY
Based on 12,800M JPY, interest 1%, term 35 years.
* Calculated by equal principal and interest method. Please confirm details with each bank.
Investment Analysis & Score
- Profitability Score
- A relative score evaluating this unit's income potential among all listed properties, based on estimated rental income, cash flow, and cash-on-cash return. Higher scores indicate stronger expected income during the holding period.
- Asset Value Score
- A score evaluating asset value retention based on local land price levels, building scale (management stability), and listing scarcity. Properties in prime locations with large-scale buildings and low listing ratios score higher.
- Liquidity Score
- A score evaluating ease of future resale or re-letting, based on building listing ratio, days on market, favorite registrations, and area supply-demand balance. Higher scores indicate more flexible exit options.
- Appreciation Score
- A score evaluating future price appreciation potential, based on 5-year land price CAGR, recent year-over-year land price changes, and AI appraisal deviation. In the Osaka condo market over the past decade, capital gains have become the primary source of returns, and this score visualizes investment value beyond yield alone.
- Cash-on-Cash Return (CoC)
- The annual cash flow as a percentage of equity (down payment). It reflects actual investment efficiency including leverage. For example, 5% CoC means an expected 5% annual return on your equity investment.
- 5-Year Land Price CAGR
- The compound annual growth rate of officially published land prices in the surrounding area over the past 5 years. It serves as a reference for evaluating area asset value and future exit pricing.
- Yield vs Monthly Cash Flow
- Gross yield is calculated as annual estimated rent divided by purchase price, excluding expenses. Monthly CF deducts all costs including management fees, repair reserves, loan payments, property tax, and PM fees. For high-priced properties, loan payments can be substantial, making CF negative even with positive yield. CF assumptions: 80% LTV, 1.80% rate, 35-year term.
CIELIA TOWER OSAKA TEMMABASHI Details
View price trends, transaction history, asset analysis, and neighborhood information for this building.
CIELIA TOWER OSAKA TEMMABASHI – Contact
Contact us in the way that works best for you.
CIELIA TOWER OSAKA TEMMABASHI Price & Rent Market
| Sale Market | 12,500M JPY 〜 15,800M JPY Average 13,775M JPY / Listings 4 |
|---|---|
| Rent Market | 300,000 JPY 〜 300,000 JPY Average 300,000 JPY / Listings 1 |















Overall Assessment: Total score 46.9 (top 77%). Below median; careful review of income and exit strategy is recommended.
Profitability score: 46.8 (top 71%). Gross yield est. 2.40%. Net yield est. 1.67%. Monthly CF: ¥-150,347 (negative carry). Cash-on-cash return: -7.1%. (Loan: 1.80%, 80% LTV, 35yr)
Asset score: 45.5 (top 82%). Located in a prime area (land price ¥918,202/m²). Listed 22.1% above AI appraisal — may be overpriced. Built just 4 years ago — low obsolescence risk.
Liquidity score: 54.3 (top 39%). Building listing ratio: 2.3% (scarce).
Appreciation score 47.5 (top 74%). Nearby land prices have grown at a 5-year CAGR of 6.1%. Comparable transactions in this area/vintage: +24.5% change.
Building average (4 units): 48.8. This unit: -1.9 points below.
* This analysis is based on our proprietary scoring model and provided for reference only. It does not guarantee investment outcomes. Please conduct your own due diligence and consult professionals before making decisions.