堂島ザ・レジデンスマークタワー(大阪市 北区堂島2丁目)にある2LDKのお部屋です。
専有面積:65.85㎡、27階、地上39階建。
価格:12,500万円、管理費:3,500円、修繕積立金:7,000円。
最寄駅:四つ橋線 西梅田 徒歩1分、JR東西線 北新地 徒歩4分。
建物設備:オートロック、コミュニティルーム、コンシェルジュ、エレベータ、免震構造、制震構造、スカイラウンジ、宅配ボックス。
部屋設備:バリアフリー、ディスポーザー、複層ガラス、浄水器、洗浄便座、システムキッチン、浴室乾燥機、床暖房。
特徴:該当情報なし。
建物概要:大阪メトロ四つ橋線「西梅田」駅 徒歩1分 / JR東西線「北新地」駅 徒歩4分 を活かせる、堂島ザ・レジデンスマークタワー。
価格:12,500万円、管理費:3,500円、修繕積立金:7,000円。
最寄駅:四つ橋線 西梅田 徒歩1分、JR東西線 北新地 徒歩4分。
建物設備:オートロック、コミュニティルーム、コンシェルジュ、エレベータ、免震構造、制震構造、スカイラウンジ、宅配ボックス。
部屋設備:バリアフリー、ディスポーザー、複層ガラス、浄水器、洗浄便座、システムキッチン、浴室乾燥機、床暖房。
特徴:該当情報なし。
建物概要:大阪メトロ四つ橋線「西梅田」駅 徒歩1分 / JR東西線「北新地」駅 徒歩4分 を活かせる、堂島ザ・レジデンスマークタワー。
目次
物件のお写真・間取り図
お部屋情報
堂島ザ・レジデンスマークタワーの概要
- 所在地
- 大阪市 北区堂島2丁目2-8 [地図表示]
- 交通
- 四つ橋線 西梅田 徒歩1分
JR東西線 北新地 徒歩4分 - 築年月
- 2013年9月
- 構造等
- 鉄筋コン / 地上39階建
- 総戸数
- 269戸
- 管理方式
- 通勤(日勤)
- 用途地域
- 商業地域
- 建ぺい率
- 80%
- 容積率
- 600%
- 土地権利
- 所有権
- 地勢
- 平坦
- 国土法届出
- 不要
- 物件種別
- マンション
このお部屋の概要
- 価格
- 12,500万円
- 所在階
- 27階
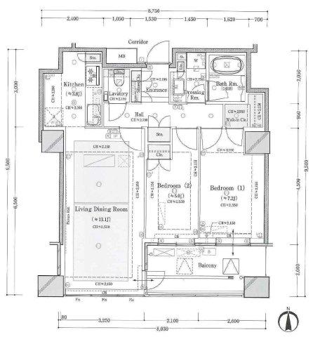
- 間取り
- 2LDK
- 専有面積
- 65.85㎡
- 管理費
- 3,500円
- 修繕積立金
- 7,000円
- 月額合計
- 10,500円
- 現況
- 空室
設備・特徴
- コンシェルジュ
- 免震構造
- スカイラウンジ
- シアタールーム
全設備を見る
- オートロック
- コミュニティルーム
- エレベータ
- 制震構造
- 宅配ボックス
- タワー型
- バリアフリー
- ディスポーザー
- 複層ガラス
- 浄水器
- 洗浄便座
- システムキッチン
- 浴室乾燥機
- 床暖房
駐車場・駐輪場
- 月額料金
- 現在調査中です
堂島ザ・レジデンスマークタワー
堂島ザ・レジデンスマークタワーは、大阪府大阪市 北区堂島2丁目2-8に建つ地上39階、総269戸のレジデンスです。大阪メトロ四つ橋線「西梅田」駅 徒歩1分 / JR東西線「北新地」駅 徒歩4分という交通利便を備え、都心アクセスと日常利便の両方を取りやすい立地が魅力です。DB上では免震に加え、コンシェルジュ、スカイラウンジが確認でき、スケール感と都市居住性の両方を備えた建物として整理できます。
堂島ザ・レジデンスマークタワーのメリット・デメリット
- メリット
- – 大阪メトロ四つ橋線「西梅田」駅 徒歩1分 / JR東西線「北新地」駅 徒歩4分 の交通利便 / – 2013年9月竣工 / – 地上39階・総269戸のスケール / – コンシェルジュ、スカイラウンジ
- デメリット
- – 会社情報や詳細共用仕様は要確認 / – 各階ゴミ置場、内廊下、ペット条件など未確認項目が残る / – 駅直結有無や細かな管理情報は追加確認が必要
堂島ザ・レジデンスマークタワーのよくある質問
堂島ザ・レジデンスマークタワー 近隣施設・環境
緑地
🌳 うめきた公園
781m
ホテル
🏨 Four Seasons Hotel Osaka
98m
ホテル
🏨 ザ・リッツ・カールトン 大阪
236m
ホテル
🏨 コンラッド大阪
403m
商業施設
🛍️ ハービスPLAZA
234m
商業施設
🛍️ ハービスPLAZA ENT
335m
商業施設
🛍️ ヒルトンプラザ ウエスト
366m
商業施設
🛍️ KITTE大阪
427m
商業施設
🛍️ ヒルトンプラザ イースト
442m
商業施設
🛍️ 阪神梅田本店
622m
商業施設
🛍️ GRAND GREEN OSAKA
684m
商業施設
🛍️ 阪急うめだ本店
776m
商業施設
🛍️ グランフロント大阪
790m
飲食店
🍽️ 北新地 大嵓埜(おおくらの)
210m
飲食店
🍽️ 日本料理 花筐(HANAGATAMI)
253m
飲食店
🍽️ KITASHINCHI ひおか 日本料理
270m
飲食店
🍽️ 弧柳 継心
277m
飲食店
🍽️ 緒乃
329m
飲食店
🍽️ 寿し処 黒杉 心貫
382m
飲食店
🍽️ KAHALA
501m
飲食店
🍽️ 日本料理 楽心
580m
飲食店
🍽️ 福島 もう利
627m
飲食店
🍽️ 遊膳人 田はた
781m
文化施設
🎭 サンケイホールブリーゼ
218m
文化施設
🎭 ビルボードライブ大阪
308m
文化施設
🎭 大阪四季劇場
322m
文化施設
🎭 フェスティバルホール
431m
文化施設
🎭 大阪中之島美術館
550m
文化施設
🎭 国立国際美術館
594m
医療
🏥 ザ・リッツ・カールトン・スパ
236m
医療
🏥 トキコクリニック梅田院(旧菜のはなインナーケアクリニック)
576m
医療
🏥 ハイメディック大阪中之島
603m
医療
🏥 ルシアクリニック大阪梅田院
683m
利便施設
🏪 ジュンク堂書店 大阪本店
199m
ビジネス
🏢 梅田
ビジネス
🏢 中之島
ビジネス
🏢 淀屋橋
その他
📍 大丸 梅田店
595m
公園
🌲 西梅田公園
301m
公園
🌲 中之島四季の丘
459m
公園
🌲 堂島公園
484m
公園
🌲 芝生広場
527m
公園
🌲 上福島東公園
578m
公園
🌲 ほたるまちにある広場
599m
公園
🌲 堂島公園
605m
公園
🌲 うめきた公園 サウスパーク
761m
スーパー
🛒 CoDeli
408m
スーパー
🛒 Yamatsuji
532m
スーパー
🛒 ビオラル
580m
スーパー
🛒 ダイエー
616m
スーパー
🛒 いかり
786m
ドラッグストア
💊 ダイコクドラッグ
263m
ドラッグストア
💊 ダイコクドラッグ
285m
ドラッグストア
💊 ダイコクドラッグ
394m
ドラッグストア
💊 クオール薬局
415m
ドラッグストア
💊 Medi+マツキヨ
419m
ドラッグストア
💊 くすりのコンビニ
485m
ドラッグストア
💊 セガミ薬局
491m
ドラッグストア
💊 精進堂薬局
500m
ドラッグストア
💊 スギ薬局
506m
ドラッグストア
💊 マツモトキヨシ
599m
ドラッグストア
💊 みどり薬局
670m
ドラッグストア
💊 アカカベ薬局
684m
ドラッグストア
💊 はやぶさ薬局
705m
ドラッグストア
💊 エムスタ薬局
745m
ドラッグストア
💊 オーエスドラッグ
765m
コンビニ
🏪 ファミリーマート
55m
コンビニ
🏪 ファミリーマート
63m
コンビニ
🏪 ファミリーマート
120m
コンビニ
🏪 セブン-イレブン
139m
コンビニ
🏪 ローソン
161m
コンビニ
🏪 ファミリーマート
176m
病院
🩺 堂島ライフケアクリニック
161m
病院
🩺 桜橋渡辺病院
255m
病院
🩺 大阪中央病院
381m
病院
🩺 W Clinic Homme
592m
病院
🩺 桜橋渡辺未来医療病院
650m
病院
🩺 ハイメディック大阪中之島
652m
病院
🩺 大阪中之島整形外科
655m
病院
🩺 中之島アイセンターCLINIC
659m
病院
🩺 活寿会記念クリニック
666m
病院
🩺 大塚鍼灸整骨院
690m
病院
🩺 ReCORE リコア 鍼灸接骨
708m
病院
🩺 関西電力病院
765m
郵便局
📮 大阪曽根崎新地郵便局
93m
郵便局
📮 堂島アバンザ郵便局
194m
郵便局
📮 堂島浜通郵便局
238m
郵便局
📮 中之島ダイビル内郵便局
376m
郵便局
📮 大阪中央郵便局
402m
郵便局
📮 大阪駅前第2ビル内郵便局
414m
郵便局
📮 中之島郵便局
449m
郵便局
📮 大阪福島駅前郵便局
641m
郵便局
📮 大阪阪急内郵便局
752m
銀行
🏦 紀陽銀行
131m
銀行
🏦 三菱UFJ銀行
161m
銀行
🏦 みずほ銀行
172m
銀行
🏦 りそな銀行
228m
銀行
🏦 大阪シティ信用金庫
263m
銀行
🏦 大阪厚生信用金庫
328m
銀行
🏦 農林漁業金融公庫
419m
銀行
🏦 大阪商工信用金庫
443m
銀行
🏦 三菱UFJ銀行
475m
銀行
🏦 尼崎信用金庫 梅田支店
540m
銀行
🏦 みずほ銀行
559m
銀行
🏦 日本銀行
585m
銀行
🏦 滋賀銀行
603m
銀行
🏦 国民生活金融公庫
632m
銀行
🏦 三井住友銀行
641m
銀行
🏦 SMBC日興証券
671m
銀行
🏦 三井住友銀行
699m
銀行
🏦 近畿産業信用組合
701m
銀行
🏦 お初天神 EASTBLDG
717m
堂島ザ・レジデンスマークタワー 学校区
| 小学校区 | 中之島小学校 |
|---|---|
| 中学校区 | 中之島中学校 |
ローン返済額
毎月の返済額の目安 : 352,857円
借入金額12,500万円、金利1%、返済期間35年での計算です。
※元利均等返済方式での計算になります。あくまでもご返済の目安にするものになりますので、詳細は各銀行でご確認下さい。
投資適正分析・スコア
総合スコア51.6上位 33%△ 標準
収益性51.1上位 37%+2.9 vs 棟内
資産性54.2上位 19%+0.4 vs 棟内
流動性53.9上位 56%+0.0 vs 棟内
値上がり期待52.7上位 25%+1.6 vs 棟内
表面利回り2.87%
実質利回り2.07%
月間CF¥-105,414※利回りはプラスですが、ローン返済・経費控除後はマイナスです
地価5年CAGR11.52%
地価水準¥1,773,766/㎡
エリア区分都心
- 収益性スコア
- 想定賃料収入・キャッシュフロー・自己資金利回り等をもとに、この住戸の収益力を全掲載物件の中で相対評価したスコアです。スコアが高いほど、保有期間中のインカムゲインが期待しやすい住戸といえます。
- 資産性スコア
- 周辺公示地価の水準・建物の総戸数(管理体制の安定性)・売出物件の希少性をもとに、資産価値の維持しやすさを評価したスコアです。好立地・大規模・希少性の高い建物ほど高く評価されます。
- 流動性スコア
- 同建物の出品率・掲載日数・お気に入り登録数・エリアの需給バランスなどをもとに、将来の売却や再賃貸のしやすさを評価したスコアです。高いほど出口戦略を描きやすい住戸です。
- 値上がり期待スコア
- 周辺地価の5年間成長率(CAGR)・直近1年の地価変動・AI査定との乖離をもとに、今後の値上がりが期待できるかを評価したスコアです。ここ10年の大阪マンション市場ではキャピタルゲインが主な収益源となっており、利回りだけでは測れない投資価値を可視化します。
- 自己資金利回り(CoC)
- 自己資金(頭金)に対する年間キャッシュフローの割合です。借入によるレバレッジ効果を含めた実質的な投資効率を示します。例えばCoC 5%なら、自己資金に対して年5%のリターンが見込める計算です。
- 地価5年CAGR
- 周辺地域の公示地価の過去5年間の年平均成長率(Compound Annual Growth Rate)です。エリアの資産性や将来の出口価格を見通す上での参考指標になります。
- 表面利回りと月間CFの関係
- 表面利回りは「年間想定賃料÷購入価格」で経費を含まない指標です。一方、月間CFは管理費・修繕積立金・ローン返済・固定資産税・PM費を全て差し引いた手残りです。特に高額物件ではローン返済額が大きくなるため、表面利回りがプラスでも月間CFがマイナスになることがあります。CF算出条件:借入比率80%・金利1.80%・35年返済。自己資金比率や金利条件によりCFは大きく変動します。
堂島ザ・レジデンスマークタワーのお問い合わせ
内覧予約や条件確認は、お好みの方法でお問い合わせください。
堂島ザ・レジデンスマークタワー価格・賃料相場
| 売買相場 | 9,780万円 〜 18,598万円 平均価格 13,765万円 / 売り出し 7件 |
|---|---|
| 賃貸相場 | 190,000円 〜 450,000円 平均賃料 284,318円 / 募集中 22件 |
































総合評価:総合スコア51.6(上位33%)。平均を上回る水準にあり、条件が合えば有力な候補になります。 特に資産性に強みがあります。
収益性スコアは51.1(上位37%)で平均的な水準です。 想定利回りは表面2.87%・実質2.07%です。 利回りは控えめで、キャピタルゲイン寄りの投資判断になります。 月間CFは-105,414円のマイナス想定で、保有期間中の資金計画に注意が必要です。 自己資金利回り(CoC)は-5.1%でマイナスとなっており、レバレッジ効果は限定的です。 (CF算出条件:金利1.80%・借入比率80%・35年返済)
資産性スコアは54.2(上位19%)で、堅実な資産保全力です。 周辺公示地価は1,773,766円/㎡と高水準で、都心の利便性が資産性を支えています。 AI査定と比較して売出価格が8%やや割高な水準です。
流動性スコアは53.9(上位56%)で、売却タイミングや保有期間の見極めが重要です。 掲載52日で、標準的な反応期間内です。 同建物の出品率は2.6%と低めで、供給面での競争圧力は小さいです。
値上がり期待スコアは52.7(上位25%)で、値上がり期待は比較的高い水準です。 周辺地価は5年CAGRで+11.5%と力強い上昇トレンドにあり、エリアの資産性を強く支えています。 同エリア・同築年帯の取引単価は直近+1.6%と緩やかに推移しています。
留意事項:修繕積立金は目安に対して14%程度の乖離があります。 1億円超の価格帯では融資条件や購入者層に一定の制約があります。
同一建物内7住戸の平均スコアは49.4で、この住戸は+2.2ポイント上回っています。
※ 本分析は当社独自のスコアリングモデルに基づく参考値であり、投資の成果を保証するものではありません。実際の投資判断は、個別の調査と専門家への相談を踏まえて行ってください。