GRAND MAISON SHINUMEDA TOWER THE CLUB RESIDENCE (Osaka City, Kita WardOyodo-Minami2-chome) – 2LDK
Rent: 24.3M JPY / Management Fee: 35,000 JPY.
Nearest: Osaka Loop Line Fukushima Walk 8 min / Osaka Loop Line Osaka Walk 14 min.
Building Features: Auto lock / Community room / Concierge / Elevator / Guest room / Seismic isolation structure / Party room / Sky lounge.
Room Features: For sale/rent / Reheating function / Washlet / Indoor washing machine / Bathroom dryer / Floor heating.
Highlights: N/A.
Building Summary: Completed by Takenaka Corporation in July 2021, this is a 51-story high-rise tower with a total of 871 units. It is a super high-rise earthq…
Contents
Photos & Floor Plan
Room
GRAND MAISON SHINUMEDA TOWER THE CLUB RESIDENCE Overview
- Address
- Osaka City, Kita WardOyodo-Minami2-chome2-9 [Map]
- Access
- Osaka Loop Line Fukushima Walk 8 min
Osaka Loop Line Osaka Walk 14 min - Built
- 20217
- Structure
- Reinforced concrete / 51F / B1F
- Total Units
- 871
- Management
- Resident manager
- Zoning
- Commercial zone
- Building Coverage Ratio
- 100%
- Floor Area Ratio
- 731%
- Land Rights
- Ownership
- Topography
- Flat
- Land Act Notification
- Not required
- Property Type
- Condominium
- Notes
- GRAND MAISON SHINUMEDA TOWER THE CLUB RESIDENCE is a recommended residence offering comfort and privacy for high-profile residents.
Room Summary
- Rent
- 24.3M JPY
- Floor
- 24F
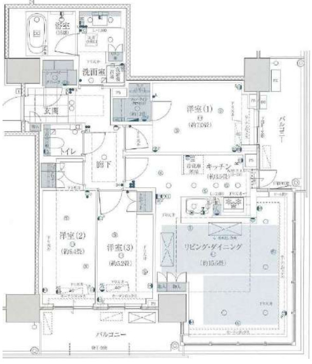
- Layout
- 2LDK
- Area
- 53.33㎡
- Management Fee
- 35,000 JPY
- Monthly Total
- 35,000 JPY
- Move-in
- 相談
- 現況
- Vacant
- 引き渡し
- Consultation
- Pet
- Not specified
Features
View all features
- Auto lock
- Community room
- Concierge
- Elevator
- Guest room
- Seismic isolation structure
- Party room
- Sky lounge
- Delivery box
- Tower type
- For sale/rent
- Reheating function
- Washlet
- Indoor washing machine
- Bathroom dryer
- Floor heating
Parking & Bicycle Parking
- Monthly Fee
- Currently under investigation
GRAND MAISON SHINUMEDA TOWER THE CLUB RESIDENCE
“Grand Maison Umeda Tower THE CLUB RESIDENCE” is the place where you want to live for potential customers (buying, renting), considering selling or renting out for those looking to relocate, and owners (landlords) who are considering room placement and rental management based on rent conditions in Osaka. Feel free to consult with a premium real estate agency specializing in second-hand tower mansions in Osaka. As part of the Grand Maison series, a super high-rise tower mansion with 51 above-ground floors and 1 underground floor, totaling 871 units, is being built. All 871 units will be equipped with residential fuel cells “Ene Farm type S” to achieve energy savings and reduce CO2 emissions. Commercial facilities and childcare facilities will be introduced, along with plans to introduce “liveliness and cultural facilities” in cooperation with “The Symphony Hall”. Additionally, a vast green space is also planned, setting expectations for it to become a new landmark west of JR Osaka Station. Each main “Osaka” station on various rail lines is within walking distance, with JR Osaka Loop Line’s “Fukushima” station just an 8-minute walk away. The floor plans range from 1LDK to 4LDK, and the floor area ranges from 45.84㎡ to 199.87㎡. ◆Common Facilities◆ ◆Parking Facilities◆ ◆Motorcycle Parking◆ ◆Bicycle Parking◆ Please check with the management association for the latest availability and actual parking availability.
1st floor: Grand Entrance Hall and Grand Foyer
2nd floor: Guest Room, Golf Range, Community Salon, Community Room, Community Terrace
35th floor: Sky Terrace, Sky Lounge, Party Room, Study Room
Mechanical Parking 352 spaces
Monthly/30,000 yen to 39,000 yen
176 spaces (Motorcycle Parking 18, Mini Motorcycle Parking 158)
Monthly/1,800 yen to 2,000 yen
1,742 spaces (Flat Type 524, Slide Rack Type 335, Two-tier Type 883)
Monthly/100 yen to 500 yen
GRAND MAISON SHINUMEDA TOWER THE CLUB RESIDENCE Pros & Cons
- Pros
- The outdoor space on the 35th floor, "Sky Terrace," and the public open space on the premises, "Season Forest (multipurpose plaza)," are some of the attractions.
- Cons
- It will be difficult to secure a contract for on-site parking in a high-rise large-scale tower apartment.
GRAND MAISON SHINUMEDA TOWER THE CLUB RESIDENCE FAQ
GRAND MAISON SHINUMEDA TOWER THE CLUB RESIDENCE Nearby Facilities & Area
GRAND MAISON SHINUMEDA TOWER THE CLUB RESIDENCE School Districts
| Elementary School | 大淀小学校 |
|---|---|
| Junior High School | 大淀中学校 |
GRAND MAISON SHINUMEDA TOWER THE CLUB RESIDENCE Details
View price trends, transaction history, asset analysis, and neighborhood information for this building.
GRAND MAISON SHINUMEDA TOWER THE CLUB RESIDENCE – Contact
Contact us in the way that works best for you.
GRAND MAISON SHINUMEDA TOWER THE CLUB RESIDENCE Price & Rent Market
| Sale Market | 8,980M JPY 〜 19,800M JPY Average 13,648M JPY / Listings 15 |
|---|---|
| Rent Market | 180,000 JPY 〜 920,000 JPY Average 352,642 JPY / Listings 151 |




























































































































































