CREVIA TOWER MIDOSUJI HOMMACHI (Osaka City, Chuo WardAzuchimachi3-chome) – 1LDK
Price: 10,980M JPY / Management Fee: 7,200 JPY / Repair Reserve: 9,800 JPY.
Nearest: Osaka Metro Midosuji Line Hommachi Walk 1 min / Osaka Metro Chuo Line Hommachi Walk 1 min.
Building Features: Auto lock / Concierge / Elevator / Guest room / Sky lounge / Earthquake-resistant structure / Delivery box / Tower type.
Room Features: Barrier-free / Dishwasher / Garbage disposer / Double glazing / Water purifier / Corner room / LDK over 20 tatami / Shampoo dresser.
Highlights: N/A.
Building Summary: A 30-story tower condominium with seismic design construction by Nippon Kokudo Kaihatsu scheduled to be completed in 2022, consisting of a t…
Contents
Photos & Floor Plan
Room
CREVIA TOWER MIDOSUJI HOMMACHI Overview
- Address
- Osaka City, Chuo WardAzuchimachi3-chome4-9 [Map]
- Access
- Osaka Metro Midosuji Line Hommachi Walk 1 min
Osaka Metro Chuo Line Hommachi Walk 1 min - Built
- 20222
- Structure
- Reinforced concrete / 30F / B1F
- Total Units
- 170
- Management
- Unknown
- Zoning
- Commercial zone
- Building Coverage Ratio
- 80%
- Floor Area Ratio
- 600%
- Land Rights
- Ownership
- Constructor
- 日本国土開発株式会社
- Developer
- 伊藤忠都市開発株式会社 / 東急不動産株式会社 / 近鉄不動産株式会社 / NTT都市開発株式会社
- Management Company
- 伊藤忠アーバンコミュニティ株式会社
- Topography
- Flat
- Land Act Notification
- Not required
- Property Type
- Condominium
- Notes
Room Summary
- Price
- 10,980M JPY
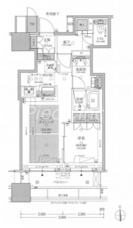
- Floor
- 28F
- Layout
- 1LDK
- Area
- 65.12㎡
- Management Fee
- 7,200 JPY
- Repair Reserve
- 9,800 JPY
- Monthly Total
- 17,000 JPY
- 現況
- Vacant
Features
View all features
- Auto lock
- Concierge
- Elevator
- Guest room
- Sky lounge
- Earthquake-resistant structure
- Delivery box
- Tower type
- Barrier-free
- Dishwasher
- Garbage disposer
- Double glazing
- Water purifier
- Corner room
- LDK over 20 tatami
- Shampoo dresser
- Washlet
- System kitchen
- Bathroom dryer
- Floor heating
Parking & Bicycle Parking
- Monthly Fee
- Currently under investigation
CREVIA TOWER MIDOSUJI HOMMACHI
For customers who want to live in “Crevia Tower Midosuji Hommachi” (buying or renting), owners considering selling due to exchange of residence or rental conditions, or who are interested in room allocation and rent management: Feel free to consult with a premium real estate specializing in second-hand tower mansions in Osaka city.
A 30-story tower mansion located a 1-minute walk from Osaka Metro “Hommachi Station” on Midosuji Avenue has been born, standing at the forefront of Midosuji.
It not only provides a safe and serene environment close to work but also adds excitement to life as it intersects various urban and living functions.
The building’s four sides feature a design with full-direction facades unique to the square site. The design divides each side into three sections and casts a deep shadow in the center to highlight the corner areas on both sides. The grey corner walls rise intertwining vertical and horizontal threads, enveloping the entire building in an image of “dressing in textiles” based on the concept. The modern windows with vertical slits on the stone-clad, substantial pedestal blend with the green of the public open space, aiming to harmonize with modern architecture that still retains its beauty nearby. The slender tower based on the same color from the pedestal section achieves a pioneering appearance that pierces through the urban sky and illuminates the future of urban living.
Located in the , Crevia Tower Midosuji Hommachi is an area with new urban functions harmonizing commercial and residential spaces. Open city space development and roadside greening are planned.
The total number of units is 170, with residential floor areas ranging from 39.51㎡ to 125.99㎡, offering 1LDK to 3LDK layouts.
CREVIA TOWER MIDOSUJI HOMMACHI Pros & Cons
- Pros
- Perfect for a second home in a business district
- Cons
- It's not a location that seems to be convenient for practical needs.
CREVIA TOWER MIDOSUJI HOMMACHI FAQ
CREVIA TOWER MIDOSUJI HOMMACHI Nearby Facilities & Area
CREVIA TOWER MIDOSUJI HOMMACHI School Districts
| Elementary School | 開平小学校 |
|---|---|
| Junior High School | 東中学校 |
Loan Estimate
Estimated monthly payment: 309,949 JPY
Based on 10,980M JPY, interest 1%, term 35 years.
* Calculated by equal principal and interest method. Please confirm details with each bank.
Investment Analysis & Score
- Profitability Score
- A relative score evaluating this unit's income potential among all listed properties, based on estimated rental income, cash flow, and cash-on-cash return. Higher scores indicate stronger expected income during the holding period.
- Asset Value Score
- A score evaluating asset value retention based on local land price levels, building scale (management stability), and listing scarcity. Properties in prime locations with large-scale buildings and low listing ratios score higher.
- Liquidity Score
- A score evaluating ease of future resale or re-letting, based on building listing ratio, days on market, favorite registrations, and area supply-demand balance. Higher scores indicate more flexible exit options.
- Appreciation Score
- A score evaluating future price appreciation potential, based on 5-year land price CAGR, recent year-over-year land price changes, and AI appraisal deviation. In the Osaka condo market over the past decade, capital gains have become the primary source of returns, and this score visualizes investment value beyond yield alone.
- Cash-on-Cash Return (CoC)
- The annual cash flow as a percentage of equity (down payment). It reflects actual investment efficiency including leverage. For example, 5% CoC means an expected 5% annual return on your equity investment.
- 5-Year Land Price CAGR
- The compound annual growth rate of officially published land prices in the surrounding area over the past 5 years. It serves as a reference for evaluating area asset value and future exit pricing.
- Yield vs Monthly Cash Flow
- Gross yield is calculated as annual estimated rent divided by purchase price, excluding expenses. Monthly CF deducts all costs including management fees, repair reserves, loan payments, property tax, and PM fees. For high-priced properties, loan payments can be substantial, making CF negative even with positive yield. CF assumptions: 80% LTV, 1.80% rate, 35-year term.
CREVIA TOWER MIDOSUJI HOMMACHI Details
View price trends, transaction history, asset analysis, and neighborhood information for this building.
CREVIA TOWER MIDOSUJI HOMMACHI – Contact
Contact us in the way that works best for you.
CREVIA TOWER MIDOSUJI HOMMACHI Price & Rent Market
| Sale Market | 6,280M JPY 〜 15,980M JPY Average 11,928M JPY / Listings 7 |
|---|---|
| Rent Market | 345,000 JPY 〜 345,000 JPY Average 345,000 JPY / Listings 3 |



























Overall Assessment: Total score 55.4 (top 8%). This unit is among the strongest investment candidates we track.
Profitability score: 55.3 (top 10%) — strong income potential. Gross yield est. 3.34%. Net yield est. 2.43%. Monthly CF: ¥-59,969 (negative carry). Cash-on-cash return: -3.3%. (Loan: 1.80%, 80% LTV, 35yr)
Asset score: 51.3 (top 47%). Located in a prime area (land price ¥1,367,422/m²). Built just 4 years ago — low obsolescence risk.
Liquidity score: 54.3 (top 39%).
Appreciation score 56.3 (top 5%), indicating strong capital gain potential. Nearby land prices have grown at a 5-year CAGR of 8.9%. Comparable transactions in this area/vintage: +22.6% change.
Building average (7 units): 52.8. This unit: +2.6 points above.
* This analysis is based on our proprietary scoring model and provided for reference only. It does not guarantee investment outcomes. Please conduct your own due diligence and consult professionals before making decisions.