Brillia Tower 堂島(大阪市 北区堂島2丁目)にある2LDKのお部屋です。
専有面積:86.69㎡、11階、地上49階建。
価格:22,800万円、管理費:1,750円、修繕積立金:5,000円。
最寄駅:四つ橋線 西梅田 徒歩6分、JR東西線 北新地 徒歩7分。
建物設備:オートロック、オール電化、コミュニティルーム、コンシェルジュ、エレベータ、ジム、制震構造、スカイラウンジ。
部屋設備:オートバス、眺望良好、食洗機、ディスポーザー、複層ガラス、浄水器、角部屋、LDK20帖以上。
特徴:該当情報なし。
建物概要:堂島の都心性とラグジュアリーを象徴する、Four Seasons 一体開発の超高層タワー。
価格:22,800万円、管理費:1,750円、修繕積立金:5,000円。
最寄駅:四つ橋線 西梅田 徒歩6分、JR東西線 北新地 徒歩7分。
建物設備:オートロック、オール電化、コミュニティルーム、コンシェルジュ、エレベータ、ジム、制震構造、スカイラウンジ。
部屋設備:オートバス、眺望良好、食洗機、ディスポーザー、複層ガラス、浄水器、角部屋、LDK20帖以上。
特徴:該当情報なし。
建物概要:堂島の都心性とラグジュアリーを象徴する、Four Seasons 一体開発の超高層タワー。
目次
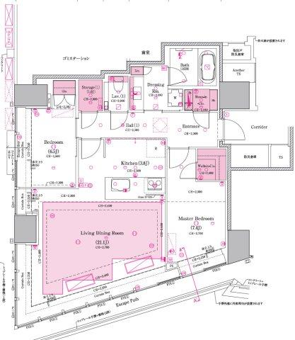
物件のお写真・間取り図
お部屋情報
Brillia Tower 堂島の概要
- 所在地
- 大阪市 北区堂島2丁目4-4 [地図表示]
- 交通
- 四つ橋線 西梅田 徒歩6分
JR東西線 北新地 徒歩7分 - 築年月
- 2024年1月
- 構造等
- 鉄筋コン / 地上49階建 / 地下1階
- 総戸数
- 457戸
- 管理方式
- 通勤(日勤)
- 用途地域
- 商業地域
- 建ぺい率
- 100%
- 容積率
- 1200%
- 土地権利
- 所有権
- 施工会社
- 株式会社竹中工務店
- 分譲会社
- 東京建物株式会社
- 管理会社
- 株式会社東京建物アメニティサポート
- 地勢
- 平坦
- 国土法届出
- 不要
- 物件種別
- マンション
- 備考
このお部屋の概要
- 価格
- 22,800万円
- 所在階
- 11階
- 間取り
- 2LDK
- 専有面積
- 86.69㎡
- 管理費
- 1,750円
- 修繕積立金
- 5,000円
- 月額合計
- 6,750円
- 現況
- 空室
設備・特徴
- コンシェルジュ
- ジム
- スカイラウンジ
- 眺望良好
- 角部屋
全設備を見る
- オートロック
- オール電化
- コミュニティルーム
- エレベータ
- 制震構造
- 宅配ボックス
- タワー型
- オートバス
- 食洗機
- ディスポーザー
- 複層ガラス
- 浄水器
- LDK20帖以上
- シューズインクローゼット
- 洗浄便座
- システムキッチン
- 対面式キッチン
- ウォークインクローゼット
- 浴室乾燥機
- 床暖房
駐車場・駐輪場
- 月額料金
- 現在調査中です
Brillia Tower 堂島
Brillia Tower 堂島は、堂島二丁目に誕生した地上49階建・総457戸の超高層複合タワーレジデンスです。Four Seasons Hotel と一体で開発された象徴性の高いプロジェクトで、住宅部分は東京建物の単独事業として供給されました。西梅田駅徒歩6分、北新地駅徒歩7分という都心アクセスに加え、制振構造、コンシェルジュ、スカイラウンジ、フィットネス、オール電化など、都心ラグジュアリータワーとして訴求しやすい条件が揃っています。
Brillia Tower 堂島のメリット・デメリット
- メリット
- – 西梅田駅徒歩6分、北新地駅徒歩7分の都心利便 / – Four Seasons Hotel 一体開発という希少性 / – 地上49階建・総457戸の大規模超高層レジデンス / – 制振構造、コンシェルジュ、スカイラウンジ、フィットネス、オール電化 / – 東京建物グループによる分譲・管理体制
- デメリット
- – 都心最高級帯のため価格・維持費水準は高くなりやすい / – 一般的な実需タワーよりラグジュアリー色が強く、好みは分かれやすい / – ゲストルームや各階ゴミ置場など、細かな共用仕様は追加確認が必要
Brillia Tower 堂島のよくある質問
Brillia Tower 堂島 近隣施設・環境
ホテル
🏨 Four Seasons Hotel Osaka
24m
ホテル
🏨 ザ・リッツ・カールトン 大阪
283m
ホテル
🏨 コンラッド大阪
348m
商業施設
🛍️ ハービスPLAZA
288m
商業施設
🛍️ ハービスPLAZA ENT
440m
商業施設
🛍️ ヒルトンプラザ ウエスト
478m
商業施設
🛍️ KITTE大阪
526m
商業施設
🛍️ ヒルトンプラザ イースト
559m
商業施設
🛍️ 阪神梅田本店
741m
商業施設
🛍️ GRAND GREEN OSAKA
752m
飲食店
🍽️ 日本料理 花筐(HANAGATAMI)
269m
飲食店
🍽️ 北新地 大嵓埜(おおくらの)
324m
飲食店
🍽️ 弧柳 継心
333m
飲食店
🍽️ KITASHINCHI ひおか 日本料理
379m
飲食店
🍽️ 緒乃
427m
飲食店
🍽️ 寿し処 黒杉 心貫
487m
飲食店
🍽️ 日本料理 楽心
491m
飲食店
🍽️ KAHALA
593m
飲食店
🍽️ 福島 もう利
651m
飲食店
🍽️ 遊膳人 田はた
689m
文化施設
🎭 サンケイホールブリーゼ
317m
文化施設
🎭 ビルボードライブ大阪
404m
文化施設
🎭 フェスティバルホール
408m
文化施設
🎭 大阪四季劇場
429m
文化施設
🎭 大阪中之島美術館
432m
文化施設
🎭 国立国際美術館
481m
医療
🏥 ザ・リッツ・カールトン・スパ
288m
医療
🏥 ハイメディック大阪中之島
484m
医療
🏥 トキコクリニック梅田院(旧菜のはなインナーケアクリニック)
695m
利便施設
🏪 ジュンク堂書店 大阪本店
294m
ビジネス
🏢 中之島
ビジネス
🏢 梅田
その他
📍 大丸 梅田店
711m
公園
🌲 西梅田公園
283m
公園
🌲 中之島四季の丘
342m
公園
🌲 芝生広場
408m
公園
🌲 ほたるまちにある広場
489m
公園
🌲 堂島公園
528m
公園
🌲 上福島東公園
578m
公園
🌲 堂島公園
655m
スーパー
🛒 CoDeli
350m
スーパー
🛒 Yamatsuji
605m
スーパー
🛒 ビオラル
688m
スーパー
🛒 ライフ
770m
スーパー
🛒 KOHYO
770m
ドラッグストア
💊 セガミ薬局
381m
ドラッグストア
💊 ダイコクドラッグ
382m
ドラッグストア
💊 ダイコクドラッグ
397m
ドラッグストア
💊 精進堂薬局
430m
ドラッグストア
💊 クオール薬局
447m
ドラッグストア
💊 ダイコクドラッグ
511m
ドラッグストア
💊 Medi+マツキヨ
533m
ドラッグストア
💊 みどり薬局
551m
ドラッグストア
💊 くすりのコンビニ
576m
ドラッグストア
💊 はやぶさ薬局
600m
ドラッグストア
💊 スギ薬局
604m
ドラッグストア
💊 菊一薬局
607m
ドラッグストア
💊 薬のヒグチ
613m
ドラッグストア
💊 アカカベ薬局
619m
ドラッグストア
💊 中野薬局
637m
ドラッグストア
💊 カイセイ吉矢薬局
647m
ドラッグストア
💊 ファミリー薬局
655m
ドラッグストア
💊 エムスタ薬局
672m
ドラッグストア
💊 ふくしま薬局
684m
ドラッグストア
💊 マツモトキヨシ
711m
ドラッグストア
💊 パル薬局
762m
ドラッグストア
💊 江戸堀薬局
795m
コンビニ
🏪 ファミリーマート
81m
コンビニ
🏪 ファミリーマート
154m
コンビニ
🏪 ファミリーマート
163m
コンビニ
🏪 ローソン
177m
コンビニ
🏪 ファミリーマート
218m
コンビニ
🏪 ファミリーマート
220m
病院
🩺 堂島ライフケアクリニック
276m
病院
🩺 桜橋渡辺病院
362m
病院
🩺 大阪中央病院
411m
病院
🩺 桜橋渡辺未来医療病院
531m
病院
🩺 ハイメディック大阪中之島
533m
病院
🩺 大阪中之島整形外科
536m
病院
🩺 中之島アイセンターCLINIC
540m
病院
🩺 活寿会記念クリニック
547m
病院
🩺 大塚鍼灸整骨院
607m
病院
🩺 ReCORE リコア 鍼灸接骨
610m
病院
🩺 関西電力病院
654m
保育施設
🧸 福島幼稚園
602m
郵便局
📮 大阪曽根崎新地郵便局
199m
郵便局
📮 堂島浜通郵便局
205m
郵便局
📮 中之島ダイビル内郵便局
275m
郵便局
📮 堂島アバンザ郵便局
291m
郵便局
📮 中之島郵便局
420m
郵便局
📮 大阪中央郵便局
500m
郵便局
📮 大阪駅前第2ビル内郵便局
526m
郵便局
📮 大阪福島駅前郵便局
554m
銀行
🏦 紀陽銀行
167m
銀行
🏦 みずほ銀行
213m
銀行
🏦 りそな銀行
235m
銀行
🏦 三菱UFJ銀行
280m
銀行
🏦 農林漁業金融公庫
305m
銀行
🏦 大阪シティ信用金庫
380m
銀行
🏦 大阪商工信用金庫
410m
銀行
🏦 大阪厚生信用金庫
445m
銀行
🏦 三菱UFJ銀行
594m
銀行
🏦 日本銀行
602m
銀行
🏦 三井住友銀行
612m
銀行
🏦 尼崎信用金庫 梅田支店
619m
銀行
🏦 三井住友銀行
671m
銀行
🏦 みずほ銀行
674m
銀行
🏦 SMBC日興証券
786m
Brillia Tower 堂島 学校区
| 小学校区 | 中之島小学校 |
|---|---|
| 中学校区 | 中之島中学校 |
ローン返済額
毎月の返済額の目安 : 643,611円
借入金額22,800万円、金利1%、返済期間35年での計算です。
※元利均等返済方式での計算になります。あくまでもご返済の目安にするものになりますので、詳細は各銀行でご確認下さい。
投資適正分析・スコア
総合スコア51.0上位 39%△ 標準
収益性50.6上位 42%+0.5 vs 棟内
資産性55.5上位 10%-0.2 vs 棟内
流動性54.3上位 39%+0.0 vs 棟内
値上がり期待51.0上位 40%+0.1 vs 棟内
表面利回り3.04%
実質利回り2.35%
月間CF¥-138,961※利回りはプラスですが、ローン返済・経費控除後はマイナスです
地価5年CAGR10.43%
地価水準¥1,909,217/㎡
エリア区分都心
- 収益性スコア
- 想定賃料収入・キャッシュフロー・自己資金利回り等をもとに、この住戸の収益力を全掲載物件の中で相対評価したスコアです。スコアが高いほど、保有期間中のインカムゲインが期待しやすい住戸といえます。
- 資産性スコア
- 周辺公示地価の水準・建物の総戸数(管理体制の安定性)・売出物件の希少性をもとに、資産価値の維持しやすさを評価したスコアです。好立地・大規模・希少性の高い建物ほど高く評価されます。
- 流動性スコア
- 同建物の出品率・掲載日数・お気に入り登録数・エリアの需給バランスなどをもとに、将来の売却や再賃貸のしやすさを評価したスコアです。高いほど出口戦略を描きやすい住戸です。
- 値上がり期待スコア
- 周辺地価の5年間成長率(CAGR)・直近1年の地価変動・AI査定との乖離をもとに、今後の値上がりが期待できるかを評価したスコアです。ここ10年の大阪マンション市場ではキャピタルゲインが主な収益源となっており、利回りだけでは測れない投資価値を可視化します。
- 自己資金利回り(CoC)
- 自己資金(頭金)に対する年間キャッシュフローの割合です。借入によるレバレッジ効果を含めた実質的な投資効率を示します。例えばCoC 5%なら、自己資金に対して年5%のリターンが見込める計算です。
- 地価5年CAGR
- 周辺地域の公示地価の過去5年間の年平均成長率(Compound Annual Growth Rate)です。エリアの資産性や将来の出口価格を見通す上での参考指標になります。
- 表面利回りと月間CFの関係
- 表面利回りは「年間想定賃料÷購入価格」で経費を含まない指標です。一方、月間CFは管理費・修繕積立金・ローン返済・固定資産税・PM費を全て差し引いた手残りです。特に高額物件ではローン返済額が大きくなるため、表面利回りがプラスでも月間CFがマイナスになることがあります。CF算出条件:借入比率80%・金利1.80%・35年返済。自己資金比率や金利条件によりCFは大きく変動します。
Brillia Tower 堂島の詳細情報
価格推移・取引履歴・資産性分析・周辺環境など、この建物の詳しい情報をご覧いただけます。
Brillia Tower 堂島のお問い合わせ
内覧予約や条件確認は、お好みの方法でお問い合わせください。
Brillia Tower 堂島価格・賃料相場
| 売買相場 | 8,200万円 〜 78,000万円 平均価格 23,037万円 / 売り出し 30件 |
|---|---|
| 賃貸相場 | 190,000円 〜 6,000,000円 平均賃料 901,212円 / 募集中 33件 |















































































総合評価:総合スコア51.0(上位39%)。平均を上回る水準にあり、条件が合えば有力な候補になります。 特に資産性に強みがあります。
収益性スコアは50.6(上位42%)で平均的な水準です。 想定利回りは表面3.04%・実質2.35%です。 月間CFは-138,961円のマイナス想定で、保有期間中の資金計画に注意が必要です。 自己資金利回り(CoC)は-3.7%でマイナスとなっており、レバレッジ効果は限定的です。 (CF算出条件:金利1.80%・借入比率80%・35年返済)
資産性スコアは55.5(上位10%)で、立地・規模ともに資産価値の維持力が高い住戸です。 周辺公示地価は1,909,217円/㎡と高水準で、都心の利便性が資産性を支えています。 同建物の出品率は6.6%とやや高く、供給が多い点に留意してください。 AI査定と売出価格はほぼ一致しており、適正な価格水準です。 築2年と新しく、設備の陳腐化リスクが低い点もプラス要因です。
流動性スコアは54.3(上位39%)で、標準的な流動性です。 掲載52日で、標準的な反応期間内です。 同建物で現在30件が出品中です。
値上がり期待スコアは51.0(上位40%)で、標準的な水準です。 周辺地価は5年CAGRで+10.4%と力強い上昇トレンドにあり、エリアの資産性を強く支えています。 同エリア・同築年帯の取引単価は直近-2.4%とほぼ横ばいです。
留意事項:修繕積立金の充足率に45%の不足が見られます。将来の追加徴収や一時金リスクに注意してください。 価格帯が2億円以上のため、購入層が限定されます。出口の流動性は通常の価格帯より制約を受ける可能性があります。
同一建物内30住戸の平均スコアは50.8で、この住戸は+0.2ポイント上回っています。
※ 本分析は当社独自のスコアリングモデルに基づく参考値であり、投資の成果を保証するものではありません。実際の投資判断は、個別の調査と専門家への相談を踏まえて行ってください。