南東角住戸:専有面積120.84㎡のご紹介!!

堺筋本町駅、直結免震タワーマンション!
物件名:MJR堺筋本町タワー
所在地:大阪市中央区南本町1丁目6-9
沿線:大阪メトロ堺筋線 堺筋本町駅まで徒歩1分
大阪メトロ中央線 堺筋本町駅まで徒歩1分
価格: *億****万円
管理費修繕積立金等:月額51,300円
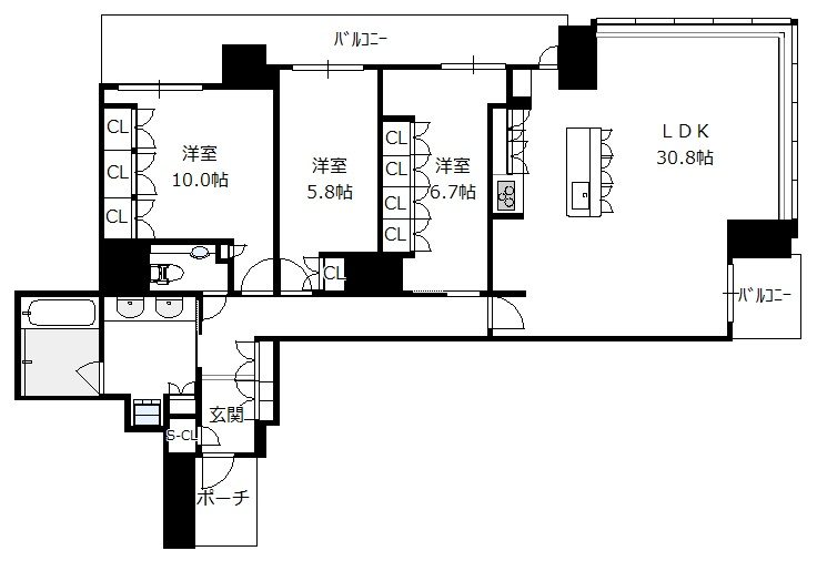
間取り:3LDK
専有面積:120.84㎡
バルコニー面積:20.33㎡
ポーチ面積:3.75㎡
階数:32階部分、角住戸
おススメPOINT:新築引渡し時に室内リノベーション!!
現況:居住中(引渡し:相談)
☑詳細はこちら(室内写真動画を公開中)
※終了いたしました。
売却・貸したい予定の所有者様はこちらよりお問合せください。
貸すことに関するお問合せ
売却に関するお問合せ

3LDK(洋10.0帖 洋6.7帖 洋5.8帖 LDK30.8帖)
※リノベーション工事後入居前のお写真(所有者様提供)
所有者様こだわりのリノベーション!
超富裕層、芸能人や著名人、経営者の方におススメではないでしょうか。
内見は事前予約制となります。
お電話で詳細等のご相談は、プレミアム不動産までお問合せください。
☎ 06-6578-3500
✉ E-mailでのお問合せはこちらをcheck

コメントを残す